О материалах и инструментах
Воплощение строительных планов в жизнь невозможно без определённых материалов и инструментов. После снятия всех размеров , прорисовки чертежа и определения нужного количества рабочего материала необходимо провести закупку. Речь идёт о составляющих элементах и подготовке нужного инструмента. Для обустройства ворот нам понадобятся профильные трубы разного диаметра. Ведя речь об основных столбах надо понимать, что трубы должны быть в размерах 100/100. Говоря о перемычках показатели профильных труб подходят в пределах 25/25. Под каркас подойдут трубы 50/50. Обшивать каркас можно используя профнастил. Можно использовать всю палитру расцветок, подбирая нужное сочетание ворот и калитки.
Вариант конструкции ворот
Обратите внимание на высоту забора и бетонирование столбов.. Если говорить о дереве, необходимо понимать, что это дорогой обшивочный материал. Зато, он смотрится более выигрышно, в сравнении с другими видами обшивки
Однако, гниение дерева и чувствительность к механическим воздействиям, может свести на нет все ваши усилия. На помощь придут средства защиты древесины от негативного влияния природных явлений. Речь идёт об обработке древесины разными пропитками от разрушения, которые продлевают срок службы
Зато, он смотрится более выигрышно, в сравнении с другими видами обшивки. Однако, гниение дерева и чувствительность к механическим воздействиям, может свести на нет все ваши усилия. На помощь придут средства защиты древесины от негативного влияния природных явлений. Речь идёт об обработке древесины разными пропитками от разрушения, которые продлевают срок службы
Если говорить о дереве, необходимо понимать, что это дорогой обшивочный материал. Зато, он смотрится более выигрышно, в сравнении с другими видами обшивки. Однако, гниение дерева и чувствительность к механическим воздействиям, может свести на нет все ваши усилия. На помощь придут средства защиты древесины от негативного влияния природных явлений. Речь идёт об обработке древесины разными пропитками от разрушения, которые продлевают срок службы.
Кованые элементы придают конструкции внушительный вид и солидность. Смотрятся мощно и красиво. Ворота из профильных труб в сочетании с коваными элементами – это дорогой вариант. К тому же, ворота и калитки из профильной трубы должны держаться на мощных петлях во избежание перекоса под собственной тяжестью со временем.
Нужно приобрести саморезы по металлу. Нужно купить грунтовку и краски, если обшивать каркас деревом. Для сварки ворот и калитки из профильной трубы нужно подготовить ряд инструментов. Это:
Сварочный аппарат с электродами. Болгарку, которая будет резать трубы на составляющие части в заданных размерах
Важно не забыть дрель. Измерительные инструменты, в том числе: рулетку, уголок, уровень
Нужно запастись кругом для шлифования сварочных швов. Понадобится ступица и молот.
И нужно купить кисть для обработки и покраски рабочей поверхности.
Профнастил – преимущества перед другими материалами для обшивки каркаса

Размер листов профнастила
Цветовая гамма и текстура листов. Нет ни одного другого материала для обшивки полотна портала для въезда, который мог бы похвастаться столь обширным выбором по цвету. Въездной портал, забор, калитка и некоторые другие элементы, схожие по цвету и текстуре однозначно украсят внутренний ландшафт территории.

Цветовая гамма листов профнастила
- Экономия на лакокрасочных материалах. Настоящие листы из профнастила не выгорают на солнце и не теряют своей яркости. Следовательно, растрачиваться ежегодно на покраску не будет необходимости.
- Долговечность. Неприхотливые в уходе и не требующие особого ремонта, листы из металлического профиля не потребуют замены ближайшие 20-30 лет. Чего нельзя сказать, например, о древесине, сэндвич-панелях и т.п.
- Низкая стоимость в сравнении с прочими стройматериалами.

Ворота, калитка и забор из профнастила
Почему профнастил
Вы когда-нибудь видели участок с забором, но без ворот? Редкое зрелище, да? Ну а теперь представьте усадьбу с воротами, но без забора…
А между тем по планам моего хорошего друга, застройка приобретенных им соток должна была начаться именно с ворот! О логике подобного решения меня прошу не спрашивать. Николай – парень неординарный и какое-нибудь адекватное объяснение некоторых его поступков искать бессмысленно.
Я просто был поставлен перед фактом, и от меня не желали слышать рассуждения о рациональности подобного решения, а лишь попросили о дружеской помощи, на что я собственно и подписался.
И первым с чем предстояло помочь, так это с выбором исходных материалов.
Я посоветовал изготовить распашные ворота из профлиста по металлическому каркасу (могут быть ворота и с деревянным каркасом).
Аргументация была донельзя проста и убедительна.
- Во-первых, это самый простой в изготовлении вид ворот, который можно собрать даже не обладая солидным строительным опытом.
- Во-вторых, такие конструкции сравнительно недороги. И если не использовать при их изготовлении художественную ковку – обойдутся не дороже деревянных.
- В-третьих, обсуждаемые металлические изделия относятся к разряду легких и не требуют для установки тяжелого фундамента. Иные умельцы и вовсе пытаются без такового обойтись, что, однако, недопустимо.
- Ну, и наконец, в-четвертых, ворота из профнастила послужат не один и не два года, сохраняя свой первозданный вид и не требуя при этом тщательного ухода.
К недостаткам же можно отнести ну разве что показную бюджетность и небольшую сопротивляемость механическим повреждениям. И в правду, волны профнастла легко примять или поцарапать, но с другой стороны, их же нетрудно и заменить.
Завершающий этап по установке железных ворот
После подготовки рамы, две центральные стойки устанавливаются по центру ворот, таким образом, чтобы зазор составлять между ними около 10 мм. Все центральные стойки также «точкуют» сваркой, а пластины приваривают основательно к опорным столбам. Чтобы усилить конструкцию ворот нужно взять стальной лист толщиной 4-3 мм, из которого выполняются 8 заготовок, которые необходимо прикрепить по углам створок. На окончательном этапе рамочная конструкция делится на две половины посредством болгарки. Оптимальным вариантом будет выполнение минимальных зазоров в петлях, в этом случае смещения створок удастся практически избежать. В качестве декоративного решения конструкции можно произвести отделку внешней стороны ворот каким-либо материалом.
Изготовление калитки
- Изготавливаем каркас из стальной трубы. Счищаем с нее грязь, ржавчину, следы старой краски, используя металлическую щетку или болгарку со специальной насадкой.
- С вертикальных торцов срезаем углы, а поперченные элементы подрезаем под углом 45°.
- Прикладываем посередине конструкции балку, строго перпендикулярно боковым опорам.
- Завариваем все детали конструкции.
Чертеж: размеры калитки из профнастила
- Зачищаем следы сварки и обрабатываем корпус антикоррозийным составом.
- Затем калитку грунтуем и окрашиваем краской.
- При помощи саморезов или клепальной машины обшиваем калитку профнастилом.
- С внутренней стороны калитки, на высоте 90 см от земли, устанавливаем задвижку, закрепляя саморезами.
- Привариваем к опорным столбам петли и навешиваем на них калитку.
- Для того чтобы створка открывалась в одну сторону, на вторую опору устанавливают отбойник. Чтобы определить его расположение, торец калитки смазывают составом, который оставляет следы. Затем закрывают калитку, там где останутся отметины и нужно вешать отбойник.
Ворота из профнастила с элементами ажурной ковки
Декорируем стальную конструкцию при помощи кованых элементов, приобретенных в магазине. Подчеркнуть изящество конструкции помогут светильники в кованом корпусе. Все элементы привариваются при помощи сварки.
Ворота из профнастила смотрятся дорого, прослужат долго, а установить из самостоятельно очень просто. Элементы ковки придают конструкции фешенебельный вид. При этом ворота не требует особого ухода и больших вложений для изготовления.
Врезка замка
Каждой входной калитке нужен замок. Выбор замков большой: от навесных до электронных. Но большинство замков врезные, они надежные, имеют много степеней защиты. При изготовлении рамы используют профильную трубу 40х20 мм, которая подходит для установки врезного замка.
Для удобства замок врезают, когда каркас еще не сварен и легко работать с заготовками. На 40 полочке, отступив от низа 90 см, делают разметку проема под замок с внутренней и внешней стороны.
Обустройство места под врезной замок
Для вырезания берут маленькую болгарку, устанавливают круг маленького диаметра, обычно это использованные круги. Разметку делают от центра профиля с запасом по 1 мм с каждой стороны.
Сначала делают продольные резы в профилированной трубе. Затем маленьким кругом делают небольшие поперечные надрезы с двух концов и посередине. Средний рез делают по диагонали, так легче прорезать планку. Затем посередине отверткой поддевают пластину. Зажимают край плоскогубцами и ломают по очереди две половины. Вырезают с двух сторон, внутри и снаружи. Подробно можно посмотреть на видео в конце статьи.
В собранном виде конструкция должна выглядеть представленным образом
Виды конструкции
По конструктивным особенностям можно выделить следующие виды ограждений из профнастила, созданные своими руками:
Распашные
Этот вариант устанавливают на самых разных объектах гражданского и военного строительства. Они популярны в сельской местности и частном секторе городов. Сама конструкция проста: на петли двух опорных столбов навешиваются две створки, открывающиеся внутрь или наружу, насколько достанет места. При этом в середине створа устанавливают ограничитель для удержания их в закрытом положении. В качестве запора используется замок, либо простой засов. А в открытом положении их удерживает подпружиненный фиксатор.
Откатные
Откатные ворота из профнастила легки в обращении и практически не требуют ухода.
Чтобы перекрыть чересчур широкие проемы в частных домах или на производстве применяют откатные ворота из профлиста. Они позволяют сэкономить место, при этом не имея ограничений по высоте. Конструкция у них еще проще предыдущих: полотно, укрепленное на консольной балке, скользит по роликам в сторону, открывая проезд. По периметру — уплотнители, предохраняющие ворота от дождя и снега.
Варианты крепления консоли:
- Сверху при прямоугольной верхней кромке полотна глухих ворот.
- Снизу с открытым профилем в случае глухих ворот с остеклением. При этом допустима любая верхняя кромка.
- С нижним расположением при закрытом профиле, когда важнее эстетика.
- Телескопический вариант для уменьшения места для открытия ворот.
Откатные ворота позволяют встраивать замыкающуюся калитку. При этом добавочным преимуществом становится повышенная стойкость конструкции к взлому и ветровой нагрузке. Стоит учесть, что для сдвигания полотна нужно много места сбоку, а сама конструкция стоит дороже.
Сдвижные
Данный тип ворот относится к предыдущему типу, так как полотно передвигается параллельно стене. Из-за отсутствия направляющей у него отсутствуют ограничения по высоте. Ширина таких ворот достигает 15 метров. Это вандалоустойчивый вариант.
При изготовлении ворот из профлиста целесообразно делать подвесную конструкцию, чтобы неровности грунта не влияли на работоспособность.
Кованые
Самые элегантными из ворот, обшитых профнастилом, — кованые. Элементы декора, изготовленные кузнецом, надежно закрепляются при помощи саморезов, либо сварки. Этот вариант удачно соединяет практичность и изящество. Плюсы в этом случае — дополнительная жесткость и долговечность изделия.
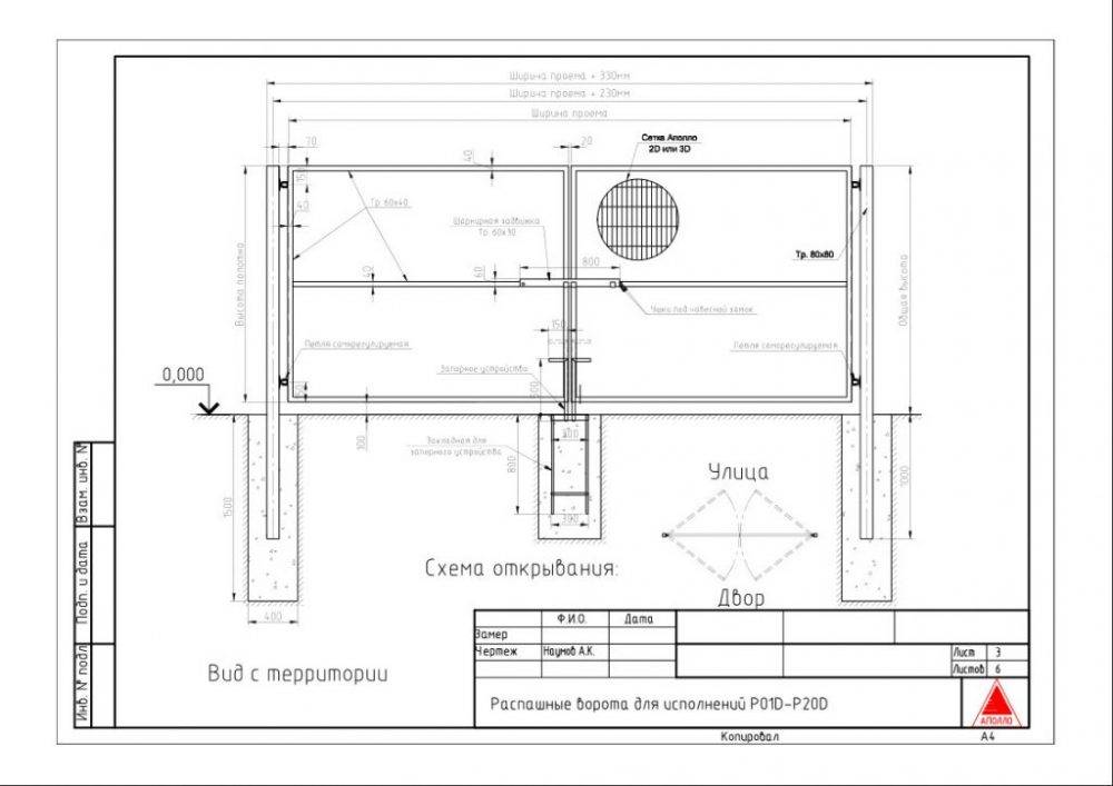
2 этап – Чертеж ворот из профнастила
Схема или чертеж распашных ворот необходим для упрощения расчета количества материала и оценки жесткости конструкции.
Два способа сделать распашные ворота:
с одной большой створкой (одностворчатые). Недостатком способа можно считать то, что нужно много места для маневра ворот, а также их большую парусность. Уменьшение парусности за счет дополнительных деталей каркаса приводит к увеличению нагрузки на петли, что в свою очередь приводит к перекосу створки. Этот способ годится только для ворот с небольшой шириной проема или для устройства калитки;
с двумя створками (двухстворчатые). Исключаются все описанные выше недостатки, но возрастает стоимость изготовления за счет добавления петель и элементов каркаса. Возможно устройство с одинаковыми или с разными по ширине створками. У двустворчатых распашных ворот есть преимущество, они более устойчивы к ветровой нагрузке.
Схема распашных ворот из профнастила должна содержать:
Схема распашных ворот из профнастилаСхема распашных ворот из профнастила с размерами
общую ширину проема. Понадобится в случае необходимости сделать маневр – при увеличении зазоров или изменении размеров фурнитуры;
ширину каждой створки;
количество, ширину стоек и глубину укапывания стоек;
конфигурацию каркаса с указанием ширины составляющих его элементов;
месторасположение и ширину калитки. Это важный аспект. Изготовление калитки из профнастила одновременно с каркасом для ворот позволит сократить срок реализации проекта. А если калитка расположена внутри каркаса ворот, чертеж позволит учесть место ее расположения при разметке и нарезке заготовок;
место установки петель;
место и способ установки замка;
место расположения внутреннего фиксатора двери (вертикального шпингалета).
Фиксатор створки ворот (вертикальный шпингалет)Фиксатор распашных ворот из профнастила
На чертеж ворот из профнастила наносится в обязательном порядке элементы усиления каркаса. Именно визуализация будущих ворот, позволяет понять, какой из элементов использовать и определить место его установки с учетом ветровой нагрузки.
Способы усилить ворота из профнастила:
1. наварить уголок для жесткости.
Такой способ подходит, если ширина створок незначительная (до 1 500 мм, каждая). Уголок может быть сплошным (косынка) или в виде угловой перемычки (распорка). Чем шире уголок или чем ближе к центру установлена перемычка, тем жестче будет каркас ворот.
Усиление каркаса распашных ворот из профнастила уголкамиУсиление каркаса ворот из профнастила косынками
2. сделать раму внутри каркаса или над ним.
Сварка рамы внутри каркаса воротВ первом случае заготовки меньшего сечения помещается в ячейки каркаса, и прихватываются сваркой с шагом в 200-300 мм.
Сплошной шов не допускается, чтобы исключить деформацию металла вследствие нагревания (чтобы не повело и не покрутило).
Сварка рамы снаружи каркаса ворот
3. установить поперечные или диагональные перемычки.
Здесь важно правильно устанавливать перемычки. Если калитка из профнастила имеет незначительную парусность и для неё достаточно установить одну поперечную перемычку перпендикулярно длинным элементам каркаса, то с воротами дело обстоит сложнее. В этом случае разумнее использовать диагональную перемычку
В этом случае разумнее использовать диагональную перемычку.
Способы установки перемычки на ворота из профнастила показаны на фото.
Варианты установки перемычек (ребра жесткости) на ворота из профнастила
Ребра жесткости ворот – варианты расположения:
а) Несмотря на кажущуюся простоту, этот вариант достаточно продуманный, поскольку гарантирует целостность створок ворот. С одной стороны, он будет удерживаться петлями, сверху исключается возможность деформации благодаря усилению углов. Снизу его удержат горизонтальные фиксаторы (шпингалеты);
б) Это самый экономичный из представленных вариантов, но он создает усиление только посредине каркаса. Единственно достоинство, в том, что он дает возможность установить замок на перемычку.
При этом варианты «а» и «б» нельзя считать надежными при ширине створки ворот более 1 500 мм.
в) недостаток этого варианта в слабом усилении верхних внутренних углов. Сильный ветер может деформировать створку;
г) в этом случае отсутствует усиление левого внутреннего угла;
д) в этом случае отсутствует усиление обоих внутренних углов;
е) идеальный вариант. Места врезки замка, установки петель, нижних фиксаторов и верхние углы усилены. Этот способ исключает кручение каркаса.
Совет. Чем шире створка, тем сильнее усиливают каркас.
Процесс установки распашных ворот
Прежде чем сделать крепкие ворота из профнастила своими руками, следует подготовить чертеж с указанием точных размеров. При этом необходимо учесть вид автотранспорта, который будет проезжать через возведенную конструкцию, а также наличие калитки.


Кроме тщательного составления чертежа, потребуется заранее закупить и обработать материал для работы, а также приготовить необходимые инструменты:
- профильные трубы разного сечения;
- металлические уголки;
- профиллированные листы;
- саморезы, болты, заклепки;
- цемент;
- грунтовка и краска по металлу;
- электроинструменты;
- сварочный аппарат.
Перед началом работ профильные трубы следует осмотреть на наличие дефектов, зачистить коррозийные места наждачной бумагой и нарезать на части, в соответствии с размерами, указанными в чертеже конструкции.









Установка опоры
В случае, если ворота из профнастила требуется установить на забор с готовыми металлическими столбами, то каркас ограждения можно зафиксировать прямо на них. Чтобы это проделать, к существующим опорам привариваются петли, и собранная стальная конструкция вешается на них.
Если же каркас приходится возводить с самого начала, процесс установки столбов выглядит другим образом:
- Измеряется требуемое расстояние и ставится разметка с учетом расчетов в чертеже.
- Роются 2 округлые ямки под фундамент, ширина которых составляет около полуметра, а глубина – не менее одного метра.
- Дно ямок засыпается песком или мелким щебнем и тщательно утрамбовывается.
- В подготовленные лунки ставятся опорные столбы строго в вертикальном положении, добиться которого можно при помощи строительного уровня. Их можно временно зафиксировать кусками арматуры, чтобы они не отклонялись в стороны.
- Столбы заливаются бетонным раствором.
Для полного затвердевания смеси необходимо выждать несколько недель, после чего приступать к дальнейшему выполнению установочных работ.
Изготовление рамы





Раму для конструкции изготавливают на ровной поверхности, вооружившись сварочным аппаратом для соединения заранее нарезанных заготовок из профильных труб.
Для надежной фиксации частей на внутреннюю стыковку каркаса приваривают металлические уголки, а также дополнительно две поперечные перекладины. Затем следует закрепить на рамную конструкцию навесы и засовы.
После того как рама готова, необходимо тщательно отшлифовать сварочные швы, весь каркас обезжирить с помощью растворителя, загрунтовать и покрыть краской.
Установка обшивки

Дождавшись полного высыхания краски на раме, можно приступать к фиксации на нее обшивки из заранее нарезанных листов профнастила. Они крепятся к каркасу конструкции при помощи саморезов или специальных заклепок. При этом, лучше их устанавливать в местах углубления материала, таким образом, они будут менее заметными.
После того, как обшивка из профиля своими руками установлена на раму, конструкция вешается на петли и производятся завершающие этапы работы, такие как монтаж замков на ворота и крепление украшающих элементов.
Материалы для изготовления ворот с элементами ковки
- Листы профнастила, количество которых нужно вычислить по чертежу. К тому же их число зависит от габаритов листа.
- Металлический профиль или труба. Они нужны для создания столбов. Высота одного столбика равна высоте конструкции, плюс один метр, который будет устанавливаться в землю.
- Ребра жесткости.
- Для создания каркаса понадобится профильная труба.
- Антикоррозийная жидкость для обработки металлических элементов.
- Краска и грунтовка.
Внимание! При расчете размеров конструкции учитывайте вес готового изделия. Громоздкие ворота будут тяжело открываться
К тому же понадобятся более прочные крепежные детали.
Вертикальные засовы
Этот вариант запоров весьма популярен среди других видов подобных устройств, так как легко изготавливается своими руками:
Вертикальные засовы служат для лучшего закрепления ворот в закрытом состоянии.
Для этого нужен обрезок обычной трубы, который разрезается на пару одинаковых частей.
- После этого они привариваются к нижней и верхней планке рамы.
- Далее берется два куска арматуры и посредством трубогиба или сварки сгибаются под углом 90°. При этом один конец прутка должен получиться чуть больше второго.
- Затем надо сделать отверстия в верхней и нижней планке каркаса, чтобы пруты могли свободно перемещаться в них.
- В грунт забиваются еще два куска трубы, которые будут выполнять роль фиксаторов для запоров.
Изготовление откатных ворот
Откатные ворота консольного типа из профлиста пользуются большим спросом. Многие предпочитают изготавливать и монтировать их самостоятельно, что совсем не трудно. Для сборки таких ворот помимо стандартного набора материалов понадобится профилированная балка, специальные роликовые тележки и дополнительная фурнитура. Кроме того, вдоль линии движения ворот сооружают фундамент.
Шаг 1. Сборка рамы ворот
Сборка рамы производится практически так же, как и для распашной конструкции. Отличие в форме каркаса – это прямоугольник с выступающей на 1,5 м основой и тремя вертикальными перемычками.
Сварочные швы зачищают, поверхность рамы ошкуривают и протирают от пыли, покрывают средством от коррозии. После этого раму нужно покрасить, а пока она сохнет, выполняют подготовку проема.
Шаг 2. Заливка фундамента
Вдоль внутренней линии забора, начиная от угла проема, копают траншею для фундамента. По краям глубина траншеи должна достигать 1,7 м, среднюю часть выкапывают на глубину 50 см. Берут стальной швеллер №10 и приваривают к его основанию металлические пруты. Каркас из прутов имеет П-образную форму.
На дно траншеи засыпают песок и щебень, сверху устанавливают конструкцию из швеллера и арматуры так, чтобы верх балки находился вровень с поверхностью грунта. Проверяют расположение швеллера по горизонтали и заливают траншею бетоном. На упрочнение фундамента уходит не менее 5 суток.
Шаг 3. Установка рамы
К швеллеру приваривают роликовые тележки: первая устанавливается в 20 см от края проема, вторая в конце швеллера. К раме крепят несущую балку, затем ворота поднимают, устанавливают на подпорки из бруса и соединяют балку с тележками. Затем устанавливают концевые ролики, улавливатель и поддерживающую скобу. Закрепив все элементы, проверяют движение рамы по направляющей балке. Если конструкция скользит легко, раму можно обшивать. Профлисты крепят точно так же, как и на распашные ворота, прикручивая материал саморезами к основе. После закрепления обшивки ворота еще раз проверяют на легкость хода.
Коротко о главном
Кованые ворота – это свидетельство художественного вкуса хозяев и безупречно элегантный вид входной группы. Комбинация ковки и профлиста позволяет экономить бюджет, сохраняя привлекательный внешний вид и эксплуатационные характеристики.
Кованые элементы повышают прочность и надежность конструкции. Они могут изготавливаться методом холодной или горячей ковки. Декор подготавливают отдельно, сваривают в композицию, красят, покрывают патиной, закрепляют на раме или полотне. Стоимость готового изделия зависит от габаритов и конструктивных особенностей ворот, а также от сложности кованых узоров.
Оценок 0
Шаг 3 — Делаем чертеж
Схема распашных ворот должна включать многие параметры:
- Общую ширину проема для ворот;
- Ширину каждой створки;
- Количество, размеры опор, а также глубину их закапывания в грунт;
- Расположение калитки, если она планируется в или рядом;
- Место петель, шпингалета, ручек или засова;
- Наличие усиления каркаса уголками, внутренней рамой или перемычками;
- Высоту декоративного обрамления, вырезанных окошек.

Чертеж необходимо делать максимально подробно, с увеличением мелких соединений и швов, чтобы учесть все условия и требования.

Перед планированием схемы рекомендуется поискать готовые варианты в интернете и переделать их с учетом имеющихся параметров. Для подбора формы и конфигурации, подходящих декоративных элементов можно ознакомиться с фотографиями ворот из профнастила.

Планирование и характеристики материала
Изготовление начинают с выбора типа ограждения. Собирают понравившиеся фото, делают эскиз, чертеж будущей входной группы. Их проектируют в одном художественном стиле, одной высоты.
Эскиз калитки с элементами ковки
В чертеже подробно указывают все размеры деталей, в которые входят профиль, замок, запоры, навесы, петли. Все тщательно прорисовывают, прописывают, чтобы во время сборки не возникали вопросы. Чем тщательней выполнен чертеж, тем впоследствии легче выполнить работу.
Схема возведения с точным описанием размеров входной группы и фундамента
Самый распространённый материал для изготовления рамы – это профильная труба. Она соответствует требованиям, необходимым для строительства:
- прочность;
- форма материала;
- цена.
Как сварить металлические распашные ворота для дачи своими руками
Распашные металлические ворота для дачи создают, как правило, по одной схеме — из двух половин (створок) высотой 1,6—1,8 м при общей ширине пролета 2,4—3,5 м. Каждая створка представляет собой раму из металлической трубы 60 х 40 х 1,5—2 или 40 х 40 х 1,5—2 мм, обшитую каким-либо материалом. Для обшивки чаще всего используют профлист, поликарбонат, гладкий прокатный или оцинкованный лист. Вместо глухой обшивки створка может быть заполнена металлической сеткой или решеткой из профилированного или кованого металла.
Если проем дачных распашных металлических ворот, изготавливаемых своими руками, не превышает 3 м, то можно сделать их и одностворчатыми, но это создаст чрезмерно большую нагрузку на подвес.
Перед тем как сделать такие ворота из металла, первым делом необходимо снять точные размеры проема: ширину и высоту. Не стоит забывать, что технический просвет (расстояние между уровнем дороги и нижней кромкой ворот или калитки) должен составлять не менее 50 мм. При зазоре 100—150 мм ворота можно будет без труда открыть даже при достаточно большом снежном покрове.
Исходя из размеров, надо сделать эскиз конструкции металлических ворот, возводимых своими руками, и подсчитать количество необходимого материала. Для ограды 2 х 3,5 м (общий проем) понадобится примерно 23 м профильной трубы (с учетом внутренних перемычек). Иногда раму ворот делают усиленной, для этого понадобится еще 15 м трубы несколько меньшего сечения.
При изготовлении металлических ворот своими руками можно использовать не только профиль, но и водопроводные трубы 1\2 — 1, а также уголок с полкой от 40 мм. При использовании уголка перед сваркой следует вырезать в заготовках часть полки для стыковки их в одной плоскости.
С поверхности металла необходимо удалить всю ржавчину. Для этого понадобится болгарка со шлифовальным диском или обычная наждачная бумага. Если вы покупали новый, чистый профиль, то он обычно бывает смазан маслом, которое необходимо удалить тряпочкой, смоченной бензином.
Перед тем как сварить металлические ворота, разложите на земле или сварочном столе все части и подгоните профили к нужному размеру. Но в любом случае сваривать раму нужно только на идеально ровной поверхности, не допуская ни малейших перекосов в плоскости створки, выверив их по горизонтали уровнем и проверяя каждое соединение угольником как до, так и после сварки.
Когда все отрезки профиля будут правильно стыковаться, зафиксируйте их струбцинами и приступайте к сварке внешней рамы. Затем измерьте и сравните диагонали рамы, чтобы убедиться в ее прямоугольности, после чего можно приваривать укосины или поперечины. Их рисунок может быть разным, главное — обеспечить створкам жесткость. Чтобы сделать металлические ворота своими руками как можно более прочными, дополнительно по углам рамы можно наварить треугольные косынки из листовой стали толщиной 3 мм. Затем еще раз пройдитесь болгаркой со шлифовальным диском, очистите места сварки и удалите шлак.
Если ворота будут устанавливаться в уже имеющийся забор с бетонными или кирпичными столбами, то еще на этапе проектирования следует учесть размеры боковых опорных стоек, которые нужно будет прикрепить к заборным столбам. Такие стойки изготавливают из профилированной трубы 60 х 60 х 2 мм или 40 х 60 х 2 мм. Если есть возможность вплотную к столбу вырыть котлован, стойки желательно забетонировать, приварив к ним внизу отрезки арматуры или полосы. Стойки строго вертикально выставляют с помощью отвеса или уровня и крепят к столбу с помощью анкеров, после чего заливают котлован бетоном. Если же забетонировать стойки невозможно (например, из-за имеющегося фундамента, который нежелательно взламывать) придется обойтись только анкерным креплением. В любом случае стойки не должны быть выше столбов — они должны располагаться на одном уровне с верхним обрезом ворот.
Если работа по установке распашных металлических ворот своими руками ведется с новым забором, целесообразно установить стойки из профилированной трубы 80 х 100 мм с толщиной стенок 7 мм. При желании впоследствии их можно обложить с трех сторон кирпичом или скрыть за настилом забора.
На этих фото показаны распашные металлические ворота, изготовленные своими руками:
Замок на ворота из профнастила
Каждые ворота изнутри должны иметь запор, препятствующий открыванию с внешней стороны. Для этого чаще всего используются большие вертикальные шпингалеты, установленные на каждую створку ворот, которые опускаются в забетонированные в землю металлические трубы. Надежно запирает ворота большой подвижный засов, расположенный на одной из створок и входящий в стопор, находящийся на противоположной створке. Достаточно часто оба типа запоров используются одновременно, что обеспечивает надежную защиту от проникновения посторонних лиц.

ФОТО: forum.motolodka.ru Накидной запор с висячим замком и два вертикальных шпингалета
Для запирания калитки обычно используется врезной или накладной дверной замок. Подобный вариант прост и удобен в эксплуатации
При выборе замка для калитки обязательно нужно обратить внимание на металл, из которого сделан замок. Предпочтительнее приобрести гаражный замок из нержавеющей стали, который не подвергается коррозии вследствие попадания атмосферных осадков

ФОТО: ntkzavod.com.ua Врезной гаражный замок с хромированными металлическими деталями
Декорирование готовой конструкции кованными элементами
Несмотря на то, что профилированные панели сами по себе выглядят достаточно празднично благодаря яркому полимерному покрытию, дополнительно их можно декорировать кованными элементами.
Интересно выглядят варианты декорирования листового металла полимерным пластиком. Небольшие разноцветные вставки, закреплённые на воротном портале за кованными элементами, выглядят волшебно, ярко переливаются в солнечных лучах.

Ворота с обшивкой из профлиста с кованными элементами и вставками из поликарбоната
Для того, чтобы полностью украсить ковкой забор, калитку и портал для въезда автомобилей, необходимо устанавливать металлические листы таким образом, чтобы выступали края рамы. Именно на них должен привариваться кованный узор.

Узорная ковка
На данный момент существует огромное количество профильных строительных магазинов, готовых предоставить готовые кованные элементы для декорирования заградительных сооружений. Несмотря на огромный выбор в городских магазинах, есть возможность заказать украшения из ковки через интернет из других городов или стран.

Кованые элементы на заказ
Разумеется, стоимость практически ювелирной работы достаточно высока, однако она того стоит. Если делать узорную ковку на заказ по собственному дизайну, выйдет гораздо дороже. Чем быстрее и качественнее необходимо изготовить кованные узоры, тем дороже это обойдётся.

Кованые украшения





































