Процесс возведения дома с подвалом
Если вы хотите, чтобы в вашем доме было подвальное помещение, то продумайте этот нюанс еще до начала строительных работ. Все происходит в несколько этапов, а именно:
- разрабатывается чертеж дома с подвалом и мансардой, либо выбираются проекты одноэтажных домов с гаражом и подвалом одновременно;
- выполняется подготовка территории. Для этого на участке делается разметка, расчищается территория, убираются растения, различный мусор и так далее.
- проводится гидроизоляция основания. От того, насколько качественно она будет выполнена, во многом зависит прочность сооружения, а также его долговечность. Это обусловлено тем, что стены подвального помещения будут соприкасаться с фундаментом. Кроме того, специалисты в строительной отрасли рекомендуют вести работы по формированию основания и подвала параллельно.

- после этого вырывается котлован необходимой глубины;
- создается опалубка и основа для стен помещения, которое будет служить своеобразным погребом;
- осуществляется заливка фундамента и стеновых конструкций. На этом этапе нельзя делать никакого перерыва, потому что за считанные дни бетон может застыть и дальнейшие работы несколько усложнятся.
- Для того, чтобы вся эта конструкция полностью застыла, рекомендуется выждать примерно две-три недели. Только после этого можно приступать к формированию напольного основания подвала и стен коттеджа.

Как видите, процесс создания подвального помещения в условиях одноэтажного дома не особо сложный. Главное — учитывать все нюансы и особенности почвы, выполнять все в соответствии с рекомендациями специалистов, и тогда, если проектирование было выполнено правильно, дом с подвальным помещением прослужит вам не один десяток лет, а фундамент не даст трещин.
Материалы для строительства
Следующий этап постройки – выбор материалов. Для сооружения гаража подойдет как кирпич, так и дерево. Можно использовать шлакоблоки или пенобетон. Однако прежде чем сделать выбор, необходимо ознакомиться с преимуществами и недостатками каждого материала.
Это самый быстрый и экономичный способ. Материал легко конструируется с помощью специального клея.
Дерево
Это не самый лучший выбор для строительства гаража, ведь древесина – быстро воспламеняющийся материал, который, к тому же, очень восприимчив к воздействию влаги. Поэтому, чтобы исключить возникновение плесени, необходимо обрабатывать поверхность антикоррозийными средствами.
Однако этот материал имеет и некоторые преимущества. К примеру, если вы решили построить гараж из бруса, это даст возможность сделать помещение с отличной теплоизоляцией, сэкономить семейный бюджет, а также выполнить все работы своими руками.
Кирпич
Это самый прочный и надежный материал в строительстве. Он не боится влаги и огня. Кроме того, кирпичная постройка прекрасно впишется в дизайн любого участка.
После выбора материала можно приступать к планировке первого и второго этажей
Первый этаж
Основой любой конструкции является фундамент, поэтому при постройке двухэтажного гаража к этому вопросу стоит подойти основательно. Часто для этого выбирают монолитную плиту из бетона, которую укладывают на песчаную подушку.
Красиво и естественно будут смотреться ворота из оцилиндрованного бруса. На высоте два с половиной метра делают опалубку, а затем заливают слой бетона. Подождав несколько дней, пока бетон застынет, можно делать перекрытие, а также слой гидроизоляции.
Второй этаж
Следующий этап – возведение стен второго этажа, которые выкладываются на нужную высоту. После создания основы делают проемы для окон, а также ставят лестницу. Укладывают стропила, за ними доски, которые перекрываются рубероидом или другим материалом.
Последний штрих – кровля крыши. Для этого можно использовать как металлочерепицу, так и пофнастил. В готовое помещение подключают все нужные коммуникации и занимаются отделкой второго этажа. Для этого необходимо тщательно продумать, что будет там находиться.
Существует много вариантов размещения в мансандровой комнате. Можно сделать большой склад для инструментов и ненужной мебели. Также можно организовать там мастерскую или комнату отдыха.
В мастерской можно установить стеллажи для инструментов, поставить верстак, организовать рабочую площадку. Тогда можно будет спокойно работать, не боясь помешать своим близким. Также, если квартира небольшая, можно организовать в мансарде комнату для занятий тем хобби, которое вам по душе. Это может быть скульптура, резьба по дереву или что-то другое.
Большой популярностью в последнее время пользуется оформление мансарды гаража под жилую комнату. Достаточно поставить диван и столик, оборудовать небольшую комнату, где можно будет посидеть с гостями. Также можно организовать оранжерею. При таком использовании верхнего этажа обязательно нужно предусмотреть систему вентиляции и утепления.
Подъездная дорожка
Подъезд к гаражу должен быть удобен и прочен. Существует много материалов для укладки подъездных дорожек. Это и брусчатка, и бетон, и гравий.
Сегодня самым распространенным вариантом является дорожка из гравия. Это самый простой в укладке материал, не требующий лишних затрат. Единственный нюанс – необходимость следить за тем, чтобы гравий не попадал во двор и в гараж. Такой материал прекрасно смотрится в сочетании с клумбами, расположенными по обеим сторонам от дорожки. Это позволяет создать уютную атмосферу в стиле прованс.
Однако данный материал имеет и недостатки. Такие дорожки неудобно чистить зимой, в сухую погоду они накапливают много пыли, а также поверхность подъездной территории может покрыться сорняками.
Другим качественным и прочным материалом для создания подъездных дорожек являются бетонные блоки. Они имеют самый долгий срок службы, не боятся воздействия погодных условий, а также легко поддерживаются в чистоте. Талантливая хозяйка может посадить вокруг дорожек кустарники или цветы. Это послужит прекрасным декором.
Стиль дома с гаражом
Архитектурный стиль фасада выбирается до начала строительства, от того какое выбрано направление, зависит форма постройки, кровли и внешний вид фасада.

Популярные стили фасадов:
- Английский. Прямые и ровные очертания дома с симметричными постройками. Фасады выполняются из камня с наличием башенок, эркеров и колонн. Коттедж в английском стиле навевает дух старинного особняка. В данном стиле гаражный бокс планируют в цокольном этаже, но если он построен на уровне первого этажа, то на другой стороне должна присутствовать симметричная постройка, которую можно оборудовать под котельную.
- Модерн. Плавность линий постройки в сочетании с рельефным оформлением природными орнаментами по фасаду. Стиль подразумевает сочетание новых материалов с природным камнем и разноцветным стеклом. Кровля округлых форм с незначительными перепадами высот. Гаражный бокс выносится немного в сторону от жилого строения, главное чтобы фасад и крыша были выполнены из одних материалов.
- Современный. Стиль допускает сочетание нескольких направлений: авангард, эко-стиль и хай-тек с применением в отделке новейших материалов и технологий. При воплощении этого стиля фасад может быть выполнен из кирпича или дерева, с металлической крышей, украшен башнями. Современный стиль может совместить все пожелания заказчика по отделке и оформлению.
Меры предосторожности при проектировании подвала
В подвальных помещениях запрещается устанавливать емкости с легко возгораемыми жидкостями. Это также касается топочных, газовых или котельных помещений.
Расположение гаража в подвальном помещении является нежелательным, хоть и разрешается правилами эксплуатации
Такие меры предосторожности объясняются тем, что такое расположение помещения может представлять опасность для жизни и здоровья людей, проживающих над таким строением. В основном это объясняется опасностью сбора выхлопных газов в верхних комнатах здания.Если вы все же решили расположить гаражное помещение под своим жилым домом, то необходимо соблюдать правила эксплуатации, которые обязывают устанавливать хорошую вентиляцию с электрической или механизированной вытяжкой
Конечно же, такое правило не касается расположения электромобилей в подземном гараже
3D планировка подвального этажа с гаражом и хозяйственными помещениями
Если в вашем подвале отсутствуют какие-либо легковоспламеняющиеся материалы, то выход может быть сделан и через тамбур здания.
При желании расположить жилой уровень в подвале необходимо обратить свое внимание на правила, указанные соответственными органами. Нормы, указанные в этом документе, дают определение жилому подвальному помещению: это комнаты или система комнат, предназначение которых заключается в круглогодичном и постоянном проживании человека, и при этом имеющие соответствие всем санитарным требованиям; также оно включает в себя подходящий микроклимат и достаточный уровень вентиляции воздуха.

Вариант планировки цокольного этажа 8х13 Если вы будете использовать советы, указанные в этой статье, то сможете сделать подвал в частном доме, который будет отличаться как прочностью, так и надежностью.
Проекты коттеджей свыше 150 м кв

Такую полезную площадь можно обеспечить при сторонах постройки более 10х10 м, поэтому, подбирая соответствующий проект, нужно рассчитывать на наличие достаточной площади строительной площадки на загородном участке. Как правило, более габаритные постройки (150 м кв и более) предусмотрены с гаражом, который может быть выполнен в открытом варианте в виде пристроенного к основному строению навеса, или в виде полноценного закрытого помещения. Закрытый гараж бывает пристроен к коттеджу или располагается под конструкциями второго этажа, имея сообщение с внутренними помещениями.
Часто более крупногабаритные двухэтажные дома имеют приблизительно такую же планировку внутренних помещений, что и малогабаритные коттеджи. Отличаться могут площади комнат, их взаимное расположение. Хотя некоторые проекты предполагают выход из минимального набора помещений за счет включения в планировку дополнительных кабинетов, биллиардных, каминных комнат, столовых.
Под одной крышей или отдельно
План двухэтажного дома может предусматривать проектирование встроенного, пристроенного гаража, а также на цокольном возвышении. Первые два варианта выигрывают в том, что заезд в помещение для машины не является препятствием ни летом, ни зимой.

Проект двухэтажного дома с пристроенным гаражом
Если гараж размещен в доме с цокольным этажом, следует заранее установить плавный спуск. Иначе машина в зимнюю гололедицу просто не заедет в ворота. Но зато гаражное помещение на цоколе или встроенное выглядит гораздо эстетичнее. Обычно крыша накрывает и жилые помещения, и гараж. Это позволяет экономить на строительных материалах при монтаже кровли.
В данном случае нет необходимости городить дополнительную сложную принудительную вентиляцию. Гараж можно пристроить с той стороны дома, где нет спален, возле бойлерной и других подсобных помещений. Выезд из него возможно сделать с торца или в любом другом удобном месте.
Как спланировать первый этаж

Нажмите чтобы увеличить
Классические помещения для первого этажа:
- кухня;
- столовая;
- гостиная;
- прихожая;
- кладовая;
- санузел;
- комнаты для гостей.
Расположив эти помещения на первом этаже, вы обеспечите свободный доступ к ним как хозяев, так и гостей дома.
Гараж

Жилое помещение в гараже позволит сделать стильное и модное помещение
При планировке, гараж располагают под одной крышей с домом, или пристраивают к нему. Как правило, он имеет два входа: из дома и через центральные ворота.
Гараж может располагаться и в цокольном помещении. Такой способ размещения имеет один существенный недостаток: достаточно крутой подъем. Это может создавать затруднения при выезде в зимний период. Также можно спланировать дом с навесом для машины. Также читайте, из чего лучше построить гараж.
Планируя положение гаража, нужно уделить особое внимание удобному выезду, как в летнее, так и в зимнее время
Почему выбирают проекты двухэтажных домов
Застройщики останавливают свой выбор на двухэтажных зданиях по нескольким основным причинам:
- когда территория вокруг здания ухожена, и над ней поработал грамотный ландшафтный дизайнер – чтобы любоваться отличными видами из окон верхнего этажа;
- постройка регламентирована принятыми в конкретной местности нормами, и прописана в разрешительной документации на возведение здания;
- участок под застройку не отличается большими размерами, а для комфортного проживания семьи требуется большое количество пространства.
Благо, проектов комфортабельных и симпатичных внешне двухэтажных домов существует великое множество, и выбрать среди них именно тот, что подойдет под конкретный участок земли, пожелания застройщика и его финансовые возможности не составит большого труда.
Какую кровлю предусмотреть в проекте дома с мансардой и гаражом: фото примеры
Обычно в типовых проектах домов с гаражом и мансардой предусматривается кровля, одновременно покрывающая основное здание и пристройку в виде гаража. Существуют варианты, у которых одно из мансардных помещений обустраивается над гаражом. Сразу можно предположить, что для таких зданий подойдет любой тип кровли, это наглядно отображено на фото проектов домов с гаражом на 2 машины. Как показывает практика, некоторые варианты экономически необоснованы, поскольку требуют значительных финансовых затрат. Кроме того, некоторые типы конструкции нельзя устраивать в определенном климатическом поясе из-за большой высоты строения.
В проектах небольшого дома с мансардой и гаражом наиболее подходящими типами кровли являются двускатные, вальмовые и полувальмовые, что наглядно отображают фото. Самым простым в исполнении вариантом является двускатная конструкция. Однако из-за такой кровли мансардное помещение будет маленьким, узким и неудобным.
Вальмовая и полувальмовая крыши относятся к четырехскатным. Благодаря таким ломаным конструкциям удается задействовать 90% площади мансардного помещения, получив при этом удобные жилые комнаты. Однако для проектирования подобных сложных конструкций понадобится помощь специалистов. Такие мансардные крыши выглядят весьма эстетично и оригинально, подчеркивая уникальность строения.

Для дома с мансардой наиболее подходящими будут двускатная, вальмовая или полувальмовая крыши
Большой популярностью пользуются проекты мансардных домов, у которых кровля строения и гаража является единым целым. Однако, с практической точки зрения наиболее удачным будет вариант, где верхняя часть гаража будет служить основой для создания террасы мансарды.
Проекты домов с мансардой и гаражом: отличительные черты коттеджей
Дом с мансардой – фото наглядно отображают различные варианты – является наиболее рациональным решением для небольшого участка, позволяющим увеличить жилую площадь без сокращения земельных угодий. Наличие личного транспорта становится причиной еще одного популярного приема – строительства дома с гаражом.

Проект дома с мансардой и гаражом для одного автомобиля
Проекты коттеджей с гаражом и мансардой обладают рядом преимуществ:
- благодаря совмещению двух функциональных зон удается снизить затраты, связанные с разработкой проекта и выполнением строительных работ;
- смежное расположение жилой зоны и гаража создает комфортную обстановку в последнем, что приводит к снижению затрат, связанных с отоплением гаража;
- создание внутреннего прохода позволяет беспрепятственно перемещаться из комнаты в гараж, не выходя на улицу, что особенно удобно в период ненастья;
- создание мансардного помещения обеспечивает увеличение жилой площади, что особенно актуально для одноэтажных построек;
- компактное многофункциональное сооружение позволяет существенно сэкономить свободную площадь земельного участка;
- строительство мансарды обойдется значительно дешевле, чем возведение второго этажа;
- мансардный этаж позволяет дополнительно утеплить жилое помещение, избавив его от сквозняков;
- пристроенный гараж будет стоить намного меньше, чем отдельно стоящий элемент;
- строения имеют стильный и презентабельный внешний вид, заметно выделяющий их на фоне других построек.
Выбираем конфигурацию крыши
В доме с мансардой конструкция крыши имеет большое влияние, ведь именно от нее зависит, насколько большой станет полезная жилая площадь. Так, наиболее комфортно находиться в мансарде с высотой стен от 2,5 метров – это оптимальный вариант.
Если потолки сделать ниже – неудобно передвигаться, выше – увеличатся расходы при строительстве и последующем отоплении жилья.
Есть несколько вариантов обустройства кровли:
- остановившись на двускатной кровле, застройщик получит в полное распоряжение более 70% полезной площади мансарды;
- крыша с ломаной конструкцией обеспечивает уже намного больше площади – в распоряжении уже более 90%;
- для комфортного использования мансарды высоту крыши стоит приподнять примерно на полтора метра.
Особенности проектов домов с устройством гаража и подвала
В настоящее время наличие транспорта – это необходимое средство для комфортного передвижения человека, без которого очень сложно обойтись при проживании за городом.
Подвал – часть дома, где хранятся продукты или вина (см.Винный погреб: делаем правильно). Поэтому наличие гаража и подвала в доме является необходимостью, что учитывается когда разрабатываются проекты двухэтажных домов с гаражом и подвалом или домов другой этажности.
Устройство этих помещений в своих домах имеет как положительные так и отрицательные стороны, которые должны учитывать проекты одноэтажных домов с гаражом и подвалом.
Преимуществами таких сооружений являются:
- Совместная разработка системы отопления в доме, гараже и подвале. При этом температура в гараже будет ниже, но достаточной для временного комфортного нахождения в нем, без дополнительного электроподогрева.
- Проход в подвал можно обустроить через внутреннее пространство жилища, что создает дополнительные удобства – не нужно, при плохой погоде, выходить на улицу, а сразу спуститься в подвал (читайте Потайной люк в подвал: какой лучше).
- При ограничении территории земельного участка есть возможность его экономии, при встраивании подвала и гаража под домом.
- Обеспечивается срок выполнения строительства, уменьшается цена сооружения в целом.
- В любое время года можно комфортно провести время в теплом гараже.
К недостаткам, которые могут иметь проекты одноэтажных домов с гаражом с подвалом можно отнести:
Для отвода выхлопного газа и препятствие их попаданию в дом необходимо устройство качественной системы вентиляции. Существуют особенности при возведении фундамента, которые необходимо строго соблюдать. При размещении в подвальном помещении гаража заезд в него и выезд усложняет наличие пандуса, особенно зимой. Проекты двухэтажных домов с подвалом и гаражом предусматривают проведение качественной гидроизоляции фундамента. До заливки фундаментной плиты необходимо выполнить смотровую яму
Из-за ограничения естественного освещения, особое внимание нужно уделить системе энергоснабжения гаража и подвала
Удобство объединенных построек
Проект двухэтажного дома при совмещении с гаражным помещением имеет преимущества:
- Под одной крышей помещаются все жилые помещения и гараж.
- Возможность сэкономить землю, не занимая много места на приусадебных участках.
- Обеспечение обогрева гаража коммуникациями дома.
- Возможность попадать в гараж, не выходя на улицу.
При проектировании планировки внутренних помещений в доме следует учитывать все требования заказчика. Но наиболее подходящими решениями являются:
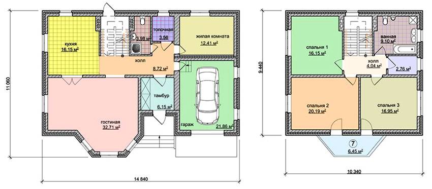
- Размещение на первом этаже кухни с выходом на мансарду, ванной, санузла в доме, кабинета, гостиной, гостевой комнаты, бойлерной, общего коридора с отдельным выходом в гараж.
Вариант планировки первого этажа двухэтажного коттеджа с гаражом
На втором этаже целесообразно разместить спальни, два санузла, ванную в частном доме и балкон.
- Размещение на первом этаже детской, гостиной, ванны и санузла, кухни студии со столовой, рядом — подсобные помещения с выходом в гараж. На втором этаже — спальня, гостевая, рабочий кабинет или студия. Можно предусмотреть надстройку над гаражом. Например, расположить в этом месте большой зимний сад в доме.
В первом случае учитывается проживание большой семьи, где есть пожилые люди. Они могут расположиться в гостевой комнате на первом этаже. Это избавит от постоянного хождения по лестнице на второй этаж. Ведь все необходимые удобства, а также план кухни расположенной на первом этаже дома.

Планировка всех этажей частного дома с гаражом
Во втором варианте планировка двухэтажного дома с гаражом предусматривает проживание семьи с маленькими детьми. Проектирование на первом этаже плана детской комнаты дает возможность для безопасного их перемещения по периметру первого этажа, где есть все необходимое.
В планировках предусмотрен выход из дома в гараж. В первом варианте — из общего коридора, во втором — из подсобного помещения. Такое проектирование дает возможность пройти в гаражное помещение в любое время, не потревожив домашних.
Проекты гаражей
Проект двухэтажного гаража делится на 2 вида: с мансардой и каркасного типа. У них есть собственные плюсы и минусы, которые необходимо учитывать.
Гараж с мансардой
Пожалуй, мансардный двухэтажный гараж построить куда проще, чем каркасный
Важно только учесть, будет ли он жилой или нет. Основное отличие в дополнительном утеплении, которое необходимо для мансарды, в которой будут жить
Также теплоизоляция понадобится, если на втором этаже будет:
- Склад стройматериалов, дерева, продуктов питания.
- Мастерская. В этом случае нужно провести отопление.
- Спортивный зал.
Гараж каркасный
А вот и вариант для полноценного жилья. Хоть в России редко рассматривают гараж с жилым помещением каркасного типа, как полноценный дом, в Европе они достаточно популярны.
Каркасные дома строятся очень быстро даже одним человеком. Им не нужен крепкий фундамент, а при простейшем утеплении минеральной ватой они становятся безопасными и теплыми.
Каркас строится из бруса и обшивается листами ОСП. В промежуток укладывается базальтовая вата или другой негорючий утеплитель. Так как конструкция легкая, используют неглубокий ленточный или плитный фундамент.
Дом с подвалом и гаражом
Особого внимания заслуживают проекты домов с подвалом и гаражом.
Подвал и смотровая яма в гараже
Целесообразность их выбора определяется, прежде всего, предварительной сметой расходов. Очень часто проекты одноэтажных домов с гаражом и подвалом увеличивают стоимость строительства всего здания на 15-30%, что является довольно внушительной суммой в денежном выражении. Однако наличие подвала значительно расширяет возможности проекта, позволяет рациональнее и экономнее использовать пространство в самом доме.
Выбирая проект дома с подвалом и гаражом, необходимо определить рациональность такого решения. Особе значение следует придавать геологическим факторам.
К ним относятся:
Высота залегания грунтовых вод над уровнем земли. Если она выше, чем глубина заложения фундамента, при сооружении подвала понадобится затратить дополнительные средства на приобретение и устройство дорогой и надежной гидроизоляции (см. Гидроизоляция подвала в гараже: подходим к вопросу комплексно).
Гидроизоляция подвала
Например: в доме, где подвал не предусмотрен, достаточно устройство горизонтальной гидроизоляции на уровне цоколя фундамента.
Вид грунта. При наличии на участке грунтов скалистого типа, для устройства фундамента потребуется привлечение спецтехники.
Преимущества и недостатки, которые имеет проект дома с гаражом и подвалом, представлены в таблице:
| За | Против |
|
|
Варианты исполнения
Проекты гаражей с подвалом могут быть самыми разными.
Некоторые примеры представлены ниже:
Самый популярный вариант — полностью заглубленный погреб глубиной от 1,5 до 3 метров.
Отдельное расположение погреба и смотровой ямы
Капитальный гараж с подвалом
В этом случае погреб может быть полузаглубленным до одного метра глубиной или полностью заглубленным. Несмотря на значительный объем строительных работ, которые требует погреб под гаражом, проект, при правильной разработке, будет очень полезным при строительстве капитального строения.
Составление плана
Составляя проекты одноэтажных домов с подвалом и гаражом, необходимо учитывать такие факторы:
- Нельзя производить строительство в низине. Это место, где строение будет постоянно подвергаться подтапливанию талыми и ливневыми водами.
- Возведение строений не стоит производить рядом с деревьями, их корни могут нанести большой вред зданию.
- Все проекты домов с подвалом, гаражом и мансардой, должны включать вопросы по организации систем электрификации, водоснабжения и канализации.
- Не стоит строить здание над подземными коммуникациями. Они должны иметь всегда свободный доступ.
Документы проекта
В комплект документации при разработке любого проекта входят:
- Схема расположения здания на участке.
- Эскиз сооружения, выполненный в масштабе и цвете.
- План гаража, подвала и жилых помещений с указанием их размеров, отметок по высоте, расположением ворот, дверей, окон и лестниц.
- Описание фундамента.
- Подробные чертежи каркаса здания.
- Спецификация материалов, необходимых для отделки.
- Эскизы крыши и материалы для кровли.
- Схема подвода коммуникаций.
Вентиляция в подвале
- Пояснительная записка.
- Расчет стоимости материалов и работ.
- Набор необходимых инструментов.
Мнение экспертов – какой вариант выбрать
Обдумывать выбор будущего дома стоит заранее, задолго до начала строительных работ. Необходимо тщательно взвесить плюсы и минусы двухэтажной постройки и жилища с мансардой и примерно оценить общую сумму, необходимую для воплощения проекта в жизнь.

Дом с гаражом двухэтажный.
Так, для жилья с мансардой не потребуется слишком мощный фундамент, само здание легче по конструкции. Но если есть планы надстройки мансарды над уже имеющимся одноэтажным домом, нужно предварительно провести требуемые расчеты, и удостовериться, что имеющийся фундамент справится с резко возросшей нагрузкой.
Одним из наиболее существенных пунктов финансовых трат станет возведение мощных стен и их утепление. Однако те деньги, которые удастся сэкономить на фундаменте, неизбежно потратятся на приобретение мансардного остекления и утепляющих материалов.
Приводить какие-либо расчеты, касающиеся полезной площади, некорректно, ведь в любом случае ее будет больше именно у здания с двумя полноценными этажами, тогда как в жилье с мансардой часть пространства зачастую пропадает впустую.
Поэтому, если для застройщика большее значение имеет именно полезный объем, лучше остановиться на двухэтажном доме. В данном случае получится не только два яруса с полноценными помещениями, но и чердак, на котором тоже выйдет обустроить что-то полезное.





































