Особенности расположения гаража
Есть несколько требований, которые рекомендуется учитывать, сооружая гараж около дома:
- Въездные ворота на участок будут определять, с какой стороны от дома гараж придется возводить (с левой или с правой). Потому что основное требование – кратчайший путь от ворот на участок до ворот в гараж.
- Идеально – если гараж будет строиться в процессе сооружения загородного дома. То есть под оба строения закладывается один общий фундамент, разделять их будет одна несущая стена, оптимально, если обе части единой строительной конструкции будет покрывать общая крыша.
- Если гараж, пристроенный к дому, является сооружением отдельно стоящим, то его можно поднимать с учетом собственного проекта. Здесь два варианта исполнения: гаражная коробка является цельной, то есть четыре несущие стены, или три стены сооружения пристраиваются к стене основного дома.
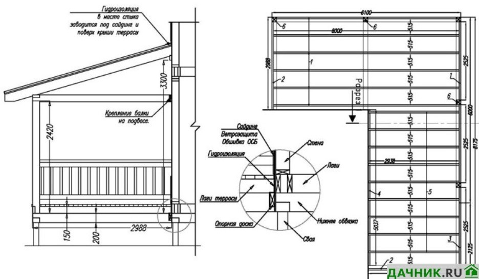
- В конструкции гаража должны присутствовать ворота и калитка, а также же дверь, соединяющая его с домом. Это необходимо обязательно учесть в проекте зданий. Перед дверью или внутри дома, или внутри гаража обязательно организуется тамбур, который предохранить дом от агрессивных условий эксплуатации гаража.
- Крышу дома и гаража покрывают одним кровельным материалом.

Гараж и дом должны покрываться одним кровельным материалом Источник stroyportal.ru В проекте должны учитываться и другие требования, касающиеся норм и правил эксплуатации гаражного помещения:
- расстояние от окна или входной двери основного дома до гаражной стены – не меньше 2,5 м;
- расстояние от балкона дома или окон второго этажа до конька кровельной конструкции гаража – не меньше 2 м;
- если гараж будет использоваться для мотоциклов или мопедов, то оба выше обозначенных параметра увеличиваются до 5 м.
Так как гараж – строение пожароопасное, то его обязательно возводят из негорючих материалов. Внутри устанавливают пожарную сигнализацию, огнетушитель и другие требуемые инструменты и приспособления, относящиеся к противопожарному инвентарю.
Советы по пристроенному гаражу
Существует ряд материалов и технологий, которые наиболее практичны и надёжны для пристройки гаража. Мы рассмотрим их по порядку, по каждой составляющей конструктива пристройки.
Фундамент гаража
Учитывая то, что пол гаража в идеале должен быть на одном уровне с дорогой подъезда, возможно использовать только фундамент неглубокого заложения.
Самый лучший в данном случае – плитный заливной фундамент. Он самый дорогой, но самый надёжный. На нём можно возводить пристройку и не бояться за пучнистость грунта. Но это только в том случае, если участок ровный и без уклона, и на нём не образуется луж, иначе в гараж будет попадать/затекать вода после дождя и таяния снега.
Если у вас не финансовых возможностей или же участок не ровный, то мы предлагаем ленточный фундамент с заложением на 5 см выше уровня грунта (дорожки подъезда) и пандусом. В этом случае стены фундамента будут выше уровня пола гаража и будут иметь проём в месте установки ворот.
Подробнее обо всех видах фундамента Вы можете ознакомиться в нашей статье «Фундамент под пристройку к дому: как правильно выбрать и заложить надёжное основание.»
Стены гаража
Самой простой, быстрой, надёжной и доступной является каркасная технология. Она не даёт усадки и лучше всего способна соединиться, «прирасти» к пристраиваемой стене и стать единым целым с домом из любого строительного материала, будь то кирпич, камень или дерево.
За счёт наличия собственного производства, мы, например, привозим на объект уже готовые и даже обработанные и покрашенные строительные материалы для сборки. Поэтому монтаж стен и конструктива крыши занимает у нас меньше времени и трудозатрат, также остаётся меньше строительного мусора.
За счёт наружной отделки декоративными материалами такую пристройку можно «подружить» с домом из любого материала.
Крыша гаража
В зависимости от конструктива основной крыши дома, крыша пристройки станет продолжением основной кровли или должна быть расположена ниже края основной кровли. При этом наклон ската должен быть не менее 10 градусов. Как правило крыша делается односкатной от стены пристраиваемого здания, без подкровельного помещения и чердака, чтобы увеличить высоту потолков, что облегчит рассеивание выхлопных газов – конечно при наличии вентиляции. Кровельный материал конечно правильнее всего выбрать идентичный основному, но бывает когда для гаража выбирают другой материал.
Если выбирать кровельный материал, то мы порекомендуем мягкую кровлю или металлочерепицу. Подробнее о видах кровли Вы можете ознакомиться в нашей статье «Порядок действий при ремонте кровли частного дома».
Ворота гаража
В настоящий момент на рынке представлено множество вариаций на тему ворот для гаража. Главное различие – они могут быть распашными и секционными, с ручным и автоматическим открыванием.
Распашные – самый простой вариант, а секционные – выезжают сверху, располагаясь параллельно полу, над верхним проёмом въезда на специальных конструкциях направляющих.
Конечно автоматические ворота самые удобные, даже если вдруг произойдёт отключение электричества их всегда можно открыть принудительно, вручную.
Материалы отделки позволяют имитировать различные рисунки, поверхности и имеются варианты по цветовому решению.
Утепление гаража
Утеплять гараж не обязательно, но следует отметить, что утепление гаража не только продлит жизнь аккумулятора машины, которая будем в нём содержаться, но выполняет функцию звукоизоляции. Утепление также защищает и от жары. Можно установить несколько обогревателей, чтобы в морозные зимы избежать промерзания помещения.
Дверь в гараж из дома
Мы советуем ставить именно входную дверь, а не межкомнатную. Не стоит экономить на двери и установить такую, которая не будет пропускать воздух, звуки и иметь замок. Отнеситесь к ней, как двери, которая ведёт в дом, а не в соседнюю комнату.
Хитрый способ пристроить гараж к зданию дома
Наиболее простым способом пристроить гаражное помещение любого размера и формы к капитальной стене дома можно с использованием обычной каркасной конструкции из сэндвич- панелей. В этом случае есть возможность остроумно использовать малый вес и конструктивные особенности такого сборного гаража:
- Фундаментная основа под возведение здания выполняется ленточного типа на глубину не менее 50- 60 см, бетон можно залить даже без опалубки, но с обязательным армированием четырех ниточным прутком диаметром в 10 мм. Утепление ленты потребуется выполнить только по внешней стороне фундамента, не примыкающей к зданию дома;
- Небольшой вес гаража и хорошие теплоизоляционные качества позволяют выполнить пристройку на относительно слабом фундаменте, без привязки к капитальной стене жилого дома;
- Такая конструкция по нормативам будет считаться временной постройкой, соответственно, есть возможность не соблюдать ограничения по удалению от забора и пожарные нормы в шесть метров, тем более что стены сэндвич панелей сделаны из тонколистовой стали и минеральной ваты. Там просто нечему гореть.
Таким способом можно пристроить гараж к деревянному дому или щитовой конструкции. Минимальное давление на грунт позволяет пристроить сооружение в непосредственной близости к фундаменту основного жилого здания, без риска просадки и деформации бетонного основания. Стальные несущие фермы крыши, помимо опорных стоек, закрепляются с одной стороны на кирпичной кладке жилого дома, что значительно повышает устойчивость и прочность конструкции.

Важно!В этом случае на слабом фундаментном основании можно пристроить относительно высокий гараж с потолками под три метра. При этом огромная парусность пристройки никоим образом не повлияет на ее прочность и устойчивость
Гараж, пристроенный к дому, имеет преимущество перед любыми другими вариантами, прежде всего, в огнестойкости, что для подобного рода строений имеет первостепенное значение. К недостаткам строения на основе сэндвич- панелей можно отнести тот факт, что внешняя «пластиковая» фактура стен потребует дополнительных усилий и затрат для декорирования постройки под стиль и цвет основного здания.

Как правильно пристроить гараж из газобетона или пеноблока
Принципиальных отличий в возведении гаража из пеноматериалов нет. Для того чтобы пристроить легкое здания из пеноматериалов, потребуется дополнительно нарастить жесткость его стен и обеспечить максимальную прочность сопряжения ленточного фундамента с основанием жилого здания.
Во-первых, в стенах в каждом третьем ряду предусмотреть горизонтальное армирование кладки из блоков стальной сеткой. В углах потребуется выполнить заделку в фундаментное основание вертикальной арматуры из прутка, которую обязательно перевязывают с горизонтальными слоями.

Во-вторых, перед заливкой опалубки фундаментной ленты гаража необходимо пробить окна до арматуры фундамента жилого здания и приварить с шагом в 20- 30 см горизонтальные отрезки выпуска к арматурному каркасу будущего основания гаража. Это позволит обеспечить достаточную жесткость соединения двух фундаментов.
В третьих, пристраивать коробку из газобетона к жилому зданию можно при условии обустройства армирующего пояса в верхней части стен гаража. В противном случае нежесткая кладка из газобетона не удержит распирающего действия стропил и каркаса крыши даже при наличии связки с капитальной стеной жилого дома.
Пристроить к зданию гараж из шлакоблока или кирпича
Наиболее распространенным является решение пристроить гараж из того же материала, что был использован при возведении основного жилого здания. В большинстве случаев считается, что удельное давление на грунт такой пристройки будет совпадать с нагрузкой фундамента жилого дома, что должно уменьшать разницу в просадке бетонной ленты или фундаментных блоков двух коробок. Соответственно, нет необходимости жестко пристраивать и привязывать две опорные системы друг к другу.

В действительности подобрать параметры небольшого бетонного основания гаража в соответствии с осадкой большого здания достаточно сложно. На практике такие фундаменты или выполняют в виде единой конструкции, или оставляют разобщенными.
При этом бетонную ленту основания отливают с запасом на осадку, как показано на схеме. Каким именно должно быть превышение по высоте, может решить лишь опытный специалист-строитель, занимающийся сопряженными фундаментами.

Выбор оптимального месторасположения
Приступая к проектированию пристройки, оцените возможность присоединения инженерных коммуникаций к существующим в здании магистралям. Гаражное помещение необходимо обеспечить:
- Системой водоснабжения и отвода стоков.
- Надежной электропроводкой.
- Отоплением (при круглогодичном использовании).
- Системой пожарной сигнализации.
Проработав схему подвода коммуникаций, определитесь с местоположением. Пристройка к дому гаража не должна нарушить целостность зрительного восприятия существующего сооружения. Главные требования, которые позволят не допустить ошибок при строительстве гаража:
- поместите строение с левой либо право стороны от главного входа в дом. Объединив под единую крышу оба здания, вы добьетесь гармоничного вида;
- определитесь с количеством входов и выходов. Рекомендуется правилами пожарной безопасности организовать запасной выход. Общую с жилым домом стену обложите огнеупорными материалами. Вариант совмещенной постройки выгоден с точки зрения теплообмена – примыкающая к гаражному помещению стена будет теплой. Наличие дополнительной двери обеспечит возможность прямого доступа в гаражное помещение во время непогоды;
Гараж можно располагать с правой или с левой стороны основного здания, лишь бы обеспечить автомобилю самый короткий путь от въезда до стоянки
не экономьте на обустройстве фундамента. Бытует мнение, что в связи с небольшой массой строения, фундамент можно выполнять мелкозаглубленным. Не рекомендуем проверять соответствие таких выводов действительности. Крепкий фундамент с повышенным запасом прочности не помешает. Ведь кроме массы сооружения, на фундамент будут действовать нагрузки при движении автомобиля.
Технология строительства
Проектирование гаража.
Для начала необходимо выделить и подготовить несколько важных моментов:
- Составить проект на строительство гаража, примыкающего к деревянному дому.
- Изучить конструкцию самого дома.
- Оценить техническое состояние стен.
- Проанализировать тип грунта.
- Выбрать тип фундамента.
- Определить необходимую глубину фундамента.
- Определить тип соединения стен.
Лучше всего использовать ленточный фундамент, но на твердых грунтах под небольшой вес можно выполнить и столбчатый фундамент
Особое внимание необходимо уделять стыкам, при проведении работ по монтажу деревянной пристройки своими руками. Любое строение после строительства дает усадку, поэтому стены могут сместиться, но надо проследить, чтобы такие смещения были минимальными
Существует такое понятие, как деформационный шов – щель между пристроенным строением гаража и домом, которую заполняют материалами, по типу полиуретана. Щели заполняются пеной, поверх которых накладываются специальные защиты.
Пристройка гаража к деревянному дому может быть выполнена из кирпича, пеноблоков, шлакоблоков или бруса. Разность материала основного строения и пристраиваемого отражается на прочности и долговечности комплекса. Конечно, независимо от типа выбранного материала для строительства, укладывать его необходимо на основание. Так, если планируется кирпичный гараж, его следует выкладывать на ленточный или монолитный фундамент. Но, необходимо не забывать учитывать тип фундамента под основным строением, выбирая основание для гаража. Если строительство гаража планируется из бруса, под такой материал можно закладывать любой тип фундамента, так как древесина относится к легким материалам.
Порядок проведения строительных работ
Присоединение гаража к дому — непростой процесс, требующий особой тщательности при соединении фундаментов двух сооружений. Сложность заключается в том, что основное здание уже прошло стадию усадки, а пристройка все еще находится в процессе усадки. Если фундамент не соединен должным образом, соединенные конструкции могут быть неправильно выровнены, и целостность всей конструкции может быть нарушена.
Существует несколько способов соединения уже построенных зданий с фундаментом вновь возводимой пристройки.
Жесткое соединение двух фундаментов

На уровне бетонного фундамента дома выкапываются траншеи, в которые засыпается подушка из гравия и песка. Затем вбейте арматуру длиной 0,5 м в существующий фундамент. Для этого с помощью перфоратора просверлите отверстия диаметром чуть меньше диаметра арматуры. Затем на песчано-гравийное основание укладывается арматурный каркас, к которому с помощью проволоки крепятся обжиговые штыри. Затем вновь сформированная конструкция заполняется бетоном.
«Мягкое» соединение пристроек.
Бетонное основание пристройки и старый фундамент покрываются мягким слоем, обычно рубероидом. Это обеспечивает «разделение» двух основ. Если гараж дает усадку, этот вариант поможет избежать внезапных деформаций и трещин.
Пристройка облегченного гаража каркасного типа

Легкий гараж из сэндвич-конструкции может быть установлен на слабом фундаменте в непосредственной близости от основного здания, не будучи прикрепленным к его массивной стене. Бетон заливается в траншеи глубиной 50-60 см и армируется четырьмя прутьями диаметром 10 мм. Он утеплен только с внешней стороны, которая не примыкает к дому. Минимальное давление, которое такая конструкция оказывает на грунт, позволяет избежать риска деформации и проседания фундамента основного здания.
Неукрепленные ленточные фундаменты — это бетонные фундаменты, залитые в форме буквы U и помещенные в грунт на глубину проникновения мороза. Их жесткость невысока, поэтому они используются для возведения легких каркасных пристроек из СИП-панелей и газо- или пенобетонных блоков. Аналогичным образом к деревянному дому можно пристроить гараж.
Закрытые цоколи имеют форму двух квадратов, расположенных с небольшим промежутком между ними. С помощью такого соединения к основному зданию можно пристроить тяжелые гаражи из кирпича или бетонных блоков.
Возведение стен

После того как фундамент достигнет необходимых прочностных характеристик, можно приступать к возведению стен. Лучше использовать для этой цели цементные блоки вместо кирпичей — они легкие, хорошо сделанные и дешевые. Размеры позволяют сократить сроки строительства.
Особенности строительства фундамента
Первым и наиболее важным этапом работ станет сооружение основания. Самым удачным выбором станет его ленточный фундамент. Хотя, если на участке присутствует твердый грунт, может пригодиться и столбчатое основание.
Особенности фундамента для гаражной пристройки:
- Готовится траншея с параметрами, соответствующими будущему сооружению, глубиной — не менее 70 см.
- В качестве подушки основания на дно ровным слоем засыпают щебень с песком.
- По всему периметру устанавливается опалубка из дерева. На песок с щебнем аккуратно выкладывается каркас, сделанный из арматурных прутьев.
- Затем арматура равномерно заливается бетоном. Для состава следует заранее заготовить, помимо воды, песок с цементом и мелкофракционный щебень. Для быстроты работы пригодится бетономешалка.
После завершения строительства фундамента на участке соприкосновения пристройки и дома могут появиться трещины, вызванные перекосом. Причина их появления проста: усадка основного здания уже случилась, а основание дополнительного сооружения будет усаживаться очень быстро, поскольку является свежим.
Для того, чтобы неприятных «сюрпризов» не произошло, фундаменты дома и пристройки нужно объединить арматурой или особым пластичным составом.
Дополнительные рекомендации к постройке гаражного помещения:
- Нельзя строить стены сразу же после фундамента. Должно пройти не менее года, чтобы стало понятно, сохранил ли фундамент свою прочность и целостность. Если трещин и разломов не появилось, значит, связка прочна, и строительство можно продолжать.
- При наличии односкатной крыши высота кровель основного здания и дополнительного окажутся разными. Поэтому осадки (снег, дождь, град) будут попадать прямо с крыши дома на крышу дополнительной постройки. Во избежание неприятных последствий потребуется качественная гидроизоляция соединения двух кровель.
- Уклон гаражной крыши делают большим в сравнении с основной. Тогда на ней не будет задерживаться влага. На месте примыкания лучше зафиксировать оцинкованный уголок, чтобы не происходило протекание.
Читайте о том, как сделать в гараже погреб, смотровую яму, кессон и подвал.
Такую пристройку советуют использовать и для других целей. Ее крыша, к примеру, может стать прекрасной зоной отдыха. Выбор материалов позволяет выстроить ее в стиле дома. Возводить гараж нужно по правилам строительства и согласно существующим правовым нормам. Тогда можно надеяться на качественный и долговечный результат.
>Полезное видео
Смотрите на видео, как выглядит гараж пристроенный к дому: https://www.youtube.com/watch?v=lbIFm_UvbpQ
Ворота и крыша
Как известно, гаражные ворота бывают трех типов:
- секционные;
- классические распашные;
- роллетные.
В отличие от распашных ворот, секционные и роллетные являются более предпочтительным вариантом. Причина этому проста: им не нужно дополнительного пространства. Управляются такие ворота посредством системы радиоуправления.
Более того, они имеют высокие качества тепло- и звукоизоляции благодаря специальному материалу, размещаемому меж панелями, из которых, собственно, и изготавливаются.
Особенно предпочтителен такой вид ворот зимой. При выпадении снега открыть двери труда не составит. А ширина ворот рассчитывается в соответствии с размерами машины и самой постройки.
Самым распространенным выбором крыши считается односкатная. Во-первых, потому, что, в сравнении с двускатной, она дешевле и проще, кроме того, сооружение при таком варианте будет иметь компактный вид.
Внимание! Гаражная кровля должна быть выполнена из того же материала, что и кровля дома.
Для односкатной крыши понадобится минимальное количество материала. Обычно угол наклона ската составляет 20-30 градусов. Если это необходимо, можно сделать и 10. Но элементы конструкции в этом случае должны быть готовы к выпадению обильных осадков.
Лучшим способом изготовления односкатной кровли станет использование специальных плит перекрытия с низкой теплопроводностью и высокой степенью звукопоглощения. Одновременно такой подход позволит решить вопросы пожаробезопасности.
Перед изготовлением односкатной крыши, учитывая размеры гаража, сооружаются висячие наклонные стропила, для которых потребуется 2 опоры. Если постройка имеет ширину не более 4,5 метра, стропила укладываются под углом на опоры и фиксируются. Если ширина больше 4,5 метров, конструкцию усиливают с помощью подкосов.
Односкатный гараж — фото:
Особенности технологического процесса
Начальным этапом работ является возведение фундамента. Наиболее оптимальным выбором в данном случае будет ленточный вариант. Но если работа выполняется на твердом грунте можно сделать выбор в пользу столбчатого основания. Действия по возведению гаража, совмещенного с домом, производятся в такой последовательности:
- Для обустройства фундамента первоначально необходимо подготовить траншею глубиной 70 см, параметры которой должны соответствовать размерам будущей постройки.
- На дно траншеи засыпается слой песка и щебня, образуя, таким образом, подушку.
- Далее по периметру траншеи необходимо установить деревянную опалубку. Из арматурных прутьев формируется каркас, который выкладывается на щебеночно-песочный слой.
- После чего арматура заливается бетонным составом. Для изготовления такого состава понадобится песок, цемент, щебень с мелкими фракциями и вода. Раствор изготавливается с помощью бетономешалки.
- После завершения работ можно столкнуться с определенными трудностями. В области соприкосновения основного здания и гаражной постройки могут образовываться трещины. Это связано с тем, что усадка дома уже произошла, а основание пристройки будет усаживаться стремительными темпами по причине своей свежести. В итоге может произойти перекос. Чтобы избежать таких неприятных последствий, нужно объединить фундаменты посредством пластичного состава или арматуры.
- Зафиксировать фундаменты при помощи арматуры можно двумя способами.
- в соответствии с первым армированную сетку основания дома нужно соединить с арматурой гаражного фундамента посредством строительной проволоки или сварки. После чего необходимо залить следующую ленту;
- второй метод предполагает дальнейшие действия. В основании дома нужно проделать перфоратором ниши глубиной 20 см. Диаметр должен соответствовать применяемой арматуре. Далее в эти отверстия следует забить арматурные штыри длиной 50 см. Данный метод фиксации является более простым и быстрым. Но вместе с тем уступает по показателям качества первому методу.
- Фиксация посредством пластичного материала выполняется следующим образом. Фундамент пристройки строится вплотную к основанию дома, но при этом оставляется незначительный зазор. Этот зазор заполняется пластичным материалом. Например, рубероидом. В результате два основания образуют одно целое, но одновременно с этим в техническом отношении не зависят друг от друга. Усадка каждого фундамента будет происходить индивидуально.

Фундамент для пристраиваемой конструкции
В качестве основания для сооружения чаще всего используют ленту или столбчатый фундамент, каждый их них обладает определёнными преимуществами и недостатками.
Ленточный фундамент
Представляет собой замкнутый контур из железобетона, возводимый под всеми несущими стенами постройки, который передаёт нагрузку от них на грунт. Он позволяет возводить деревянные, кирпичные и монолитные строения.

Рассмотрим поэтапное возведение:
- На выделенном под строение участке делается разметка с помощью колышков и веревки;
- По разметке для фундамента под пристройку к дому своими руками выкапывается траншея, зависит её глубина от залегания основания дома. Ширина нужна больше, чем толщина укладываемой стенки на 10-15 см;
- В траншею засыпается песчаный пласт в 10-12 см и утрамбовывается;
- На дно выкладывается гидроизоляция, которая выступает на поверхность почвы на 40-45 см;
- На гидроизоляцию устанавливается арматурная решётка, которая соответствует форме возводимого фундамента по ширине и высоте;
- Ленту заливают бетоном на ⅓ высоты, когда данный слой застынет, то укладывается второй на ½ оставшейся высоты;
- После заливки 2-го слоя устанавливается опалубка из древесины для возведения надземной части ленточного основания (цокольной части). Гидроизоляционный материал запускается внутрь опалубки и фиксируется к её стенкам;
- Опалубка заполняется бетонной смесью, в процессе укладки уплотняется возвратно-поступательными движениями куском арматуры или вибратором для предотвращения образования в нём пор. После заполнения всей опалубки поверхность бетона разравнивается по уровню;
- Далее бетон должен высохнуть и набрать 100%-ю прочность через 28 дней. Первые 3 дня его нужно смачивать через 2-3 часа водой. Затем он поливается 3 раза в сутки на протяжении 25 дней.
После затвердения основания опалубка снимается, поверхность покрывается снаружи материалами для гидроизоляции.

Столбчатый фундамент для пристройки к дому своими руками
Его применяют при постройке веранд и летних кухонь, обустраивают из красного кирпича либо бетона. На столбы в основном устанавливают каркас из древесины, на него настилают сам пол.
Возводится основание таким образом:
- Размечается выделенный для строительства участок. Столбы устанавливают с шагом 1,5 м;
- Для каждого столбика копается отдельная 50х50 см ямка с углублением на 50-60 см. К верху она должна расширяться на 10 см со всех сторон;
- На дно ямы насыпается подушка из слоя песка и щебёнки. Затем её дно и стенки покрываются гидроизоляцией;
- Если опоры из кирпича, то на дно ям укладывается слой раствора, на который после застывания кладётся первый ряд кирпича;
- Если опорные столбики из бетона, то в ямы устанавливают арматуру и опалубку на высоту опоры. Гидроизоляция запускается внутрь опалубки и крепится к ней;
- В установленную опалубку слоями заливают бетон. Причем каждый слой раствора должен нормально схватиться;
- Верх столбика разравнивают, бетон увлажняется водой до набора им марочной прочности;
- Опалубка демонтируется, столбы покрываются гидроизоляционным материалом (обмазываются битумной мастикой, на которую наклеивается рубероид);
- Пустоты между стенками ямы и опорой засыпаются перемешанным с щебнем грунтом, который плотно утрамбовывается.

На верх столбов укладывается рубероид для укрытия от воздействия влаги уложенных на них деревянных брусьев.
Чтобы пристроенная конструкция не отошла со временем, возводят её с небольшим наклоном в направлении дома. Уклон стенок по вертикали закладывается в 1 см на каждый метр высоты пристроя. Чаще всего уклон закладывается на этапе возведения основания.

Несколько советов по обустройству фундамента для пристройки к дому
Возведение конструкции смежной с основным домом требует особого внимания
Поэтому важно соблюдать некоторые правила по обустройству фундамента под пристройку

Конструкции пристройки
Во-первых, фундамент основного дома и основание пристройки должны быть одного типа. Связано это с тем, что каждый вид фундамента по-своему взаимодействует с грунтом, поэтому разные основания будут иметь разную усадку. В результате может произойти не только деформация пристройки, но и ее разрушение.
Во-вторых, следует правильно выбрать тип связки оснований. Это во многом зависит от типа почвы на участке. Определить устойчивость грунта можно по фундаменту основного строения. Если усадка дома была незначительной, а грунт остался равномерным, то можно смело выполнять жесткую связку фундаментов. Если вокруг дома постоянно наблюдаются проседания почвы, то лучше выполнить деформационный шов между основаниями.
Пристройка к дому – это важная часть, поэтому стоит внимательно подойти к обустройству фундамента для этой конструкции. Соблюдение технологий строительства и выполнение всех рекомендаций – это залог прочного и качественного фундамента.
Плюсы и минусы
У примыкающей к дому пристройки для хранения автомобиля есть свои преимущества, делающие ее столь популярной. Эти преимущества довольно просты и заключаются в следующем:
- строится вместе с домом;
- нет необходимости в собственном фундаменте и дополнительных стропилах;
- стилевое решение диктуется архитектурой дома;
- пристроенный гараж выступает в роли продолжения стены дома, ничем не выделяясь;
- отсутствует нужда в кабель-каналах и траншеях ниже уровня промерзания грунта, поскольку электричество заводится из жилого дома;
- отопление через подключение к общему котлу;
- меньше расходы строительных материалов благодаря тому, что одна из четырех стен общая с домом;
- вход через жилое помещение.
Но, при всех достоинствах подобного гаража, не обходится и без недостатков, которые стоит учесть, делая окончательный выбор в пользу того или иного решения:

- недопустимо расстояние между забором и домом, которое меньше пяти метров, что не всегда нравится автовладельцам;
- когда гараж строят отдельно, то это может привести к трещинам в стенах дома, а также осадке фундамента из-за отсутствия расчетов при его возведении — без дополнительного анализа грунтов не обойтись;
- необходимость учитывать дополнительную вибрацию от машин, особенно больших;
- превращение участка в проезжую часть из-за значительного удаления от въездных ворот;
- требования к наличию полноценной пожарной сигнализации и датчиков дыма — правила пожарной безопасности предусматривают это из-за хранения в гараже горюче-смазочных материалов;
- обязательная укладка смежной с домом стены из огнеупорного кирпича;
- наличие дополнительного выхода.
Как можно заметить, большинство минусов пристройки гаража связаны с особо строгими требованиями касательно пожарной безопасности, проявляемыми к строениям с таким расположением.

Долговечность и удобство дополнительного сооружения такого рода не в последнюю очередь зависят от качества выбранных материалов. Прежде чем приступить к закупкам, отвечают на несколько важных вопросов:
- есть ли потребность в полноценном гараже или укрытии от осадков;
- в наличии ли время для укладки полноценного фундамента или хватит постройки из легких материалов, построенной за несколько дней;
- есть ли необходимость в капитальном гараже;
- важна ли экономия на материалах.
Ответив на них, приступают к выбору основного материала для постройки стен. Для капитального гаража лучшим вариантом считают кирпич. В отличие от ячеистого пенистого бетона, чья укладка проста, но требует последующей обработки, он не нуждается в этом. Нет необходимости защищать его от коррозии, которой подвержен металл. При этом кирпичная кладка толще полуторной не нужна — для защиты авто хватит и ее.

Могут ли отказать в выдаче разрешения
Обоснованными считаются следующие причины отказа в выдаче РСГ:
- неполный комплект обязательных документов;
- отсутствие документа, подтверждающего права собственности на участок;
- категория участка не дает права строительства на нем капитального гаража;
- несоблюдение правил противопожарное безопасности и санитарно-эпидемиологических норм;
- грубое нарушение норм, установленных действующими СниПами;
- объект не вписывается в градостроительный план развития территории;
- гараж при возведении перекрывает свободный проезд (проход).
При устранении данных причин можно подать заявление повторно. При отказе по иным причинам решение можно оспорить в суде.
Преимущества и недостатки пристроенного к дому гаража
Дом, с пристроенным гаражом, на самом деле имеет множество плюсов:
- в дом уже проведены все коммуникации, которые легко и быстро можно перенести в гараж;
- несущая стена основной постройки толстая, а значит, с минимальными теплопотерями;
- можно организовать вход в дом через гараж, красиво его обустроив.
Что касается недостатков, то он один – уменьшается полезная территория загородного участка, часть которой уйдет под подъездной путь. Если гараж строился, как отдельно стоящее строение, то его можно было бы возвести у края участка с воротами, открывающимися за пределы дачной территории. А это увеличение свободной площади земли, которую можно использовать под другие нужды.
В видео специалист рассказывает о положительных и отрицательных качествах пристроенного к дому гаража:





































