Строительство гаража из газобетона
Сначала на основании проекта производятся расчеты материалов. Лучше доверить это профессионалам, так как ошибки при закупке стройматериалов обычно приводят к дополнительным материальным затратам. Выбирать газоблоки тоже лучше с помощью специалиста, чтобы обезопасить себя от приобретения некачественного материала или газобетона не того типа, который предусмотрен проектировщиком.
Разновидности газобетонных блоков Источник classical4u.ru
Очень важно еще на этапе проектирования хорошо продумать конструкцию фундамента. Чтобы правильно определиться с его глубиной необходимо учесть все особенности грунта на участке – глубину грунтовых вод, пучинистость почвы, глубину промерзания и т. д
Все эти данные нужны в первую очередь при строительстве дома, поэтому на момент сооружения гаража они обычно имеются у домовладельца. Если их нет, нужно сначала проконсультироваться со специалистами, и только после этого составлять проект гаража
д. Все эти данные нужны в первую очередь при строительстве дома, поэтому на момент сооружения гаража они обычно имеются у домовладельца. Если их нет, нужно сначала проконсультироваться со специалистами, и только после этого составлять проект гаража.
Процесс строительства начинается с разметки. Она выполняется при помощи нитей и кольев. Разметка необходима для того, чтобы обеспечить углам и стенам будущего гаража правильную геометрию. После нанесения разметки начинается обустройство фундамента. Поскольку газоблоки – это легковесный материал, гараж из них можно построить на ленточном фундаменте, заглубленном на 40-50 см.
Для ленточного фундамента выкапывают траншею нужной глубины и ширины, ориентируясь на нити разметки. Дно траншеи засыпают песком и щебнем, потом монтируется деревянная опалубка, укладывается каркас из арматуры и заливается бетон.
Достоинства и недостатки постройки гаража из газобетона
Главным достоинством блоков из газонаполненного бетона является их теплопроводность, что для неотапливаемого помещения даже более актуально, чем для жилого. При высокой сопротивляемости кладки передаче тепла, в гараже будет вполне приемлемая температура даже без организованного обогрева. Главное только сделать всё, чтобы кладка не продувалась ветром, а её теплопотери были сведены до минимума. От чего это зависит?
В первую очередь, от количества отклонений в геометрии блоков. Согласно ГОСТ 21520, для изделий из ячеистого бетона предусматривается три категории качества:
| Критерий оценки параметров | 1 категория | 2 категория | 3 категория |
| По длине | 3 мм | 4 мм | 6 мм |
| По высоте | 1 мм | 4 мм | 5 мм |
| По ширине | 2 мм | 3 мм | 6 мм |
| В разности длин диагоналей | 2 мм | 4 мм | 6 мм |
| В прямолинейности рёбер | 1 мм | 3 мм | 15 мм |
| В глубине отбитости углов и рёбер | 5 мм | 10 мм | 15 мм |
- К первой и второй категории относят изделия синтезного твердения (автоклавные), так как к ним предъявляются более строгие требования. У них есть свой собственный ГОСТ (31360), и третья категория в нём не предусмотрена вообще. Как видно из таблицы, разница в допустимых отклонениях существенная, и в первую очередь она влияет на толщину швов в кладке.
- В силу более высокой способности раствора проводить тепло, швы являются мостиками холода. Но это, если для кладки взяты блоки 2 или 3 категории, которые можно монтировать только на ЦПС. На цементном клеевом составе тоже можно делать толстые швы. В этом случае через них тепло уходить не будет, но большой перерасход смеси выльется в немалые затраты.
- Если же купить блоки 1 категории, их более высокую стоимость можно компенсировать экономией на кладочном растворе. Их вообще можно монтировать на клей пену. 850 мл ППУ-клея способны заменить 25-килограммовый мешок сухого цементого клея, требующего сил и средств на доставку, погрузку-выгрузку, затворение водой. Швы получаются очень тонкими, и к тому же, у клеёв на основе вспененного полиуретана коэффициент теплоизоляции в несколько раз ниже, чем у самого газобетона.
- При тонких швах кладка будет не только лучше сохранять тепло, но и меньше продуваться ветром. Причиной этого, кстати, могут являться вертикальные швы между блоками, боковые грани которых снабжены пазами игребнями. Такие изделия тоже есть в продаже, но строители их не очень-то жалуют. По технологии пазогребневые стыки можно не заполнять раствором, но такое соединение не даёт необходимой герметичности. Так что, берите лучше обычные прямые блоки.
- Любая газобетонная постройка теряет тепло так же и через монолитные участки стен. В случае с гаражом, это может быть армопояс по верхнему обрезу кладки, на который будет опираться плита перекрытия, или железобетонная перемычка над проёмом ворот. Для их заливки лучше использовать не традиционную деревянную опалубку, а газобетонные блоки с U-образной выемкой, специально предназначенные для таких работ.
Ещё одним условием высокой теплоэффективности газобетонных стен является обязательная отделка фасада, которая защитит стены от ветра и атмосферной влаги. Ещё лучше, если под этой отделкой будет утеплительная прослойка. Чем меньше кладка будет увлажняться и промерзать, тем более тёплым будет ваш гараж.
Гараж из газоблоков своими руками: общие технологические требования
Успех возведения предопределяется на этапе проектирования
По окончании составления проекта обращают внимание на строгое соблюдение строительных нормативов, соответствующих законодательству
- Технологические требования касаются учета свойства почв, типа фундамента, последовательности работ.
- Регламент при применении газобетона с определенными характеристиками изложен в официальной документации.
- Соблюдаются ГОСТы, строительные правила, нормы (СП, СНиП) относительно проектирования, возведения, контроля за плотностью и другими характеристиками.
- Требования предъявляются к изготовлению блоков, составу, процессу автоклавирования.
Кроме основных норм учитываются условия сооружения фундамента, армирования.
Стены
Большую роль играет марка производителя газобетона, определяющая показатели прочности и плотности.
Толщина стен должна быть подсчитана по величине нагрузки на них.
Технологические правила предполагают значение от 20 см в обычном климате до 40 см для северных регионов без учета утепления.
Данный параметр обеспечит надежность постройки до 2 этажей с бетонными перекрытиями.
Важно правильно отразить в проекте показатели средних температур, стойкость к морозам, механическим и иным факторам воздействия.
Стены обязательно защищаются от излишней влаги, конденсата.
Фундамент
В современном строительстве принято использовать 2 главных типа основания под гараж.
- Быстро сооружаемый ленточный фундамент, при наличии которого смотровую яму можно обустраивать после постройки стен и кровли. Усадка проходит за период от 3 до 6 месяцев.
- Монолитный, предпочитаемый в зонах сейсмической активности, неустойчивых почв, при близком расположении грунтовых вод.
Во втором случае обычно добавляется водоотведение и гидроизоляция пола.
Газобетонные блоки
Для стройматериала существуют требования, отвечающие ряду ГОСТов, строительным правилам (СП). Учитывается разновидность по назначению:
- конструкционный газобетон, с высокой плотностью;
- конструкционно-теплоизоляционный для перегородок;
- теплоизоляционный для внутреннего утепления.
Для возведения гаража используется первый тип для несущих стен и третий при необходимости делать тепловую изоляцию. Вторая разновидность применима в больших помещениях, включающих мастерскую. Также газобетон различают:
- по плотности, маркирующийся D, представленной в 14 вариантах (D200 – D1200);
- по характеристикам пористой структуры, показатели которой отражаются в таблицах;
- по форме и размеру блоков: стандартные прямоугольные, с пазами, ручками, U-образные, с различными габаритами, иногда выполненными на заказ.
ГОСТы предполагают ряд типичных параметров по размерам, предельные из которых: 625 мм в длину, 500 мм — ширина, 500 мм — высота.
Состав:
- цемент М300-М500;
- вода проточная;
- кварцевый песок;
- газообразователь — алюминиевая паста или порошок.
Дополнительные компоненты: зола, известь, гипс, керамзит, шлаки.
Приходилось строить гараж?
Да, построил сам! Готовый попался
Встроенный гараж
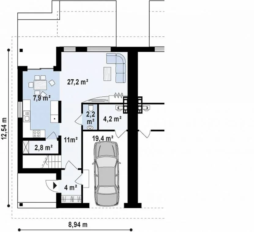
Встроенным называют такой гараж, который располагается на одном фундаменте с домом и является его конструкционной частью. У такого архитектурного решения есть свои достоинства и недостатки. Например, отдельный фундамент под гараж из газобетона может быть менее сложный и дорогостоящий, чем фундамент дома. Поэтому пристройка выходит дешевле. С другой стороны, гараж как часть коттеджа получается более теплым, к нему проще подвести все коммуникации, он изначально входит в планировку первого этажа.

Планировка первого этажа коттеджа с встроенным гаражом Источник stroydom-taldom.ru
Пошаговая инструкция по возведению
Алгоритм постройки гаража из газоблоков:
Составление и утверждение проекта (чертежа), с учетов всех деталей (смотровой ямы, возможно, обустройства небольшого погреба, залегания грунтовых вод, характера местности и почвы, вентиляции, гидроизоляции и т.д.).
Расчет всех необходимых материалов, которые пригодятся на всех этапах строительного процесса, приобретение инструментов.
Разметка котлована, земельные работы, обратная засыпка пазух, обустройство фундамента (монолит). Для этого можно пригласить профессионалов из строительной организации, которые могут выполнить работу вручную или с использованием оборудования.
По проекту в фундаменте делают смотровую яму и небольшой подвал, которые часто делают монолитными (бетонными), используя заливку по опалубкам. В углубления встроена арматура. Заливка и трамбовка проводится строго по арматурным разметкам. Смотровую яму лучше делать заранее, так как это намного легче, чем потом обустраивать ее.
Усадка фундаментного основания в течение 1 года. Возводить стены на не усевшемся основании нельзя, так как стены постройки могут покрыться трещинами, и тогда придется исправлять ошибки или заново проводить монтаж стен.
Приобретение газоблоков высокой марочной плотности. Чем больше показатель плотности D500-D1200, тем более крепкой будет постройка.
После усадки фундамента, на него укладывают рубероид, а к размеченному месту будущего расположения ворот, устанавливают раму, приваривая стержни. Главной особенностью обустройства гаража является то, что ворота ставят раньше укладки стен. На приваренные стержни цепляют ворота. Если будут сделаны ролеты, то этих действий делать не надо. Их делают в конце строительства.
Стены начинают возводить от углов с помощью плотных конструкционных блоков. Сделав разметку по периметру строительным шнуром, начинают круговую укладку первого слоя блоков на цементнопесчаный раствор. Следующие слои можно будет скреплять с помощью клея, сухой порошок которого разводят водой до сметанообразного состояния
Состав наносят зубчатым шпателем по нижней поверхности укладываемого блока.
Монтаж стен проводят в шахматном порядке, особое внимание уделяя углам, периодически измеряя их уровнем. Лишние части блоков удаляются ножовкой
Каждый 3-4 слой газобетонных изделий укрепляют с помощью стальной арматуры. Сами блоки простукивают при укладке резиновой киянкой.
Стены оставляют до высыхания, межблоковые швы затирают герметиком. Когда первый слой стен высохнет, в регионах с низкими температурами, при желании, можно сделать внутренний теплоизоляционный слой из блоков, не забывая про укладку рубероида между стенами. Оставляют места для размеченных коммуникаций, заранее вырезают их.
Верхний слой делают таким образом, чтобы образовать бетонный пояс под крышу. Когда он высохнет, на него укладываются деревянные брусья, согласно проекту, а также гидроизоляционные материалы (рубероид). При монтаже крыши, пространство которое образуется между балками, заполняется керамзитом с последующей заливкой бетоном. Затем укладывается материал, который предназначен для кровли (шифер, металлочерепица и т.д.).
Далее делается заливка пола и смотровой ямы, согласно проекту (при ленточном фундаменте). Если яма была готова раньше (монолит), то просто делают стяжку по полу.
Проводятся отделочные мероприятия. Готовые стены и смотровую яму можно штукатурить и отделывать любым материалом.
Освещение и коммуникации проводят до процесса отделки. Используют проемы по разметкам в стенах, заготовленные заранее.
Характеристика газобетона
Материал вполне пригоден для постройки гаражей. Предъявляются лишь особенные требования к фундаменту, если помещение не будет отапливаться.
Пористые блоки различных размеров производятся из песка, цемента, извести, алюминиевой пудры, при производстве создающей ячеистую структуру.
В числе технических и эксплуатационных характеристик выделяют следующие:
- маркировкой в виде буквы B (B0,5 – B12) обозначается прочность или сила, которую нужно приложить к единице площади для разрушения;
- Ru – сопротивление кладки сжатию, R – ее расчетное сопротивление, k – коэффициент надежности (2,2 у газобетона), Ru=R/k;
- чем ниже теплопроводность материала, тем лучше сохраняется тепло в помещении, у газобетона это значение 0,04 – 0,17 Вт/м*С, что сравнимо с деревом;
- теплоизоляционные свойства понижаются при увлажнении;
- плотность D связана прямой зависимостью с прочностью и обратной с теплопроводностью, измеряется в кг/м.кв;
- высота блока 250 мм по сравнению с кирпичом 65 мм позволяет быстро возводить стену;
- низкая нагрузка на основание из-за малой плотности и веса позволяет использовать практически любой фундамент;
- высокий показатель однородности структуры, одинаковое сопротивление при сжатии на всех участках;
- ровная геометрия с малыми отклонениями дает возможность укладывать блоки с тонким швом.
Газобетон характеризуют низкая теплопроводность и высокая прочность. При расчете учитывают высоту, толщину стены и слоя раствора для кладки.
Строительство гаража из газоблоков.
Возможные сложности и ошибки
При самостоятельном возведении сарая или гаража, могут возникать некоторые сложности. Чтобы их минимизировать при работе с бетонными блоками, необходимо прислушиваться к советам опытных строителей.
Чтобы сцепление материала и раствора была лучше, по блокам перед началом работы желательно пройтись мокрой щеткой.
- В качестве перемычек лучше использовать уголки.
- Раствор удобнее распределять, водя блоком по блоку, так он равномернее ляжет.
- Каждый следующий блок кладется на небольшом расстоянии от предыдущего, а потом придвигается, захватывая немного раствора.
- Нежелательно ударять по пустотелым блокам, так как они могут повредиться.
- При отсутствии опыта в разламывании бетонных изделий, делать это можно при помощи углошлифовальной машины.
- Если верхний ряд имеет неровности, то его можно подравнять, используя ножовку по металлу.
- Чаще следует проверять диагональ между углами, так как потом исправить погрешность будет невозможно.
Алгоритм строительства
Фундамент для гаража из газобетона может укладываться по нескольким схемам, выбор которых зависит от следующих параметров:
- Уровень залегания подземных вод. Если грунтовые воды находятся на уровне, ниже 2-х метров, почва однородна и плотная, то на таком грунте можно возвести ленточный фундамент на глубину до 50 см.
- Гараж из газобетонных блоков на фундаменте из монолитной плиты будет возводиться в случае, если почва отличается пучнистостью. Это обусловлено тем, что данный стройматериал плохо реагирует на изгибающие нагрузки. И если не соблюсти это негласное правило, то возводимая постройка в скором времени может растрескаться и разрушиться.
- Если проектом гаража предусмотрено наличие смотровой ямы или погреба, то фундамент для таких целей должен быть заглубленным ленточным или свайно-ленточным.

Как строить гараж из газобетонных блоков? После того, как всем материалы будут приобретены, можно приступать к выполнению фундаментной части будущего гаража:
- Этапе первый – разметка. С помощью колышков необходимо разметить место расположения будущей постройки.
- Дальше нужно вырыть яму под фундамент, которая будет соответствовать выбранному типу основы под гараж из газобетонных блоков.
- Следующей шаг – заполнение выкопанной траншеи песком с последующим его увлажнением и уплотнением.
- На утрамбованный песок укладывается арматура. Лучше всего для таких целей использовать прутки толщиной 6-8 мм.
- Далее идет этап конструирования опалубки и заливки ее бетонной основы. Раствор для фундамента готовится из расчета 6 частей мелкофракционного щебня, 1 часть цемента, 2 части песка – желательного морского. Если брать для раствора речной песок, то прочность бетона будет на порядок меньше. Для смешивания сухих компонентов лучше всего использовать бетономешалку. И только после того, как получится однородная смесь, ее можно заливать водой.
- Поверх бетонной основы укладывается армированная сетка.
После этого фундамент должен просохнуть, на что может уйти от нескольких суток до нескольких недель. Все зависит от погодных условий, при которых происходит заливка бетонной основы.
Стеновые перекрытия и каркас сооружения
С целью повышения прочностных характеристик постройки рекомендуется создать своеобразный каркас из армирующей сетки. При этом контроль над расположение арматуры реализовывается за счет небольшого выступа прутьев за край кладки.
Требования к блокам
Стандартный размер пеноблоков – 588×188×300 мм.
делятся на 3 группы:
- D200-D. Применяют для теплоизоляции, но они не отличаются прочностью.
- D500-D. Используются при возведении жилых зданий. Высокая прочность и низкая теплопроводность – 2 главных характеристики этого типа.
- D900-D. Применяются для постройки высотных домов. Блоки очень прочные и надёжные.
При строительстве гаража из пеноблока лучше всего приобрести блоки второй группы. Они являются оптимальным решением для таких построек.
Важные характеристики пенобетонного материала:
- Цвет. Должен быть серым с оттенками от светлых до тёмных тонов. Если блоки будут чересчур белыми, значит вместо цемента в состав была добавлена известь. Такая добавка повлияет на качество и прочность структуры, а также снизит технические свойства готовых блоков.
- Форма. Блоки должны быть ровными, без изгибов и перепадов. Допустимая погрешность – 2 мм. Для проверки этого параметра нужно положить несколько блоков рядом и поверх друг друга. Если они плотно соединяются, между ними нет щелей – значит, материал высшего качества.
- Пузырьки. Они не должны быть единым целым, между ними обязательно должно быть небольшое разделение, чтобы влага не поглощалась внутрь блока. Если пузырьки не разделены между собой, то это уже не пеноблок, а газоблок.
Варианты проектов гаражей из газобетона
Газобетонные блоки являются универсальным стройматериалом, из которого можно построить теплый и надежный гараж, дополненный полноценным хозблоком. Нередко газобетонные гаражи возводятся с террасами, летними кухнями или банями. Кроме того, данный материал позволяет легко сооружать гаражи, пристроенные к дому.
Проект гаража с хозблоком
Ниже представлен проект самого простого гаража на один автомобиль. Постройка дополнена удобным хозблоком. Такой гараж может быть построен как отдельно стоящее сооружение. Но его можно пристроить к дому. Второй вариант предполагает внутренний вход в дом из самого гаража и из хозблока
Выбирая подобный проект следует обратить внимание на то, что хозяйственное помещение запроектировано отдельным от гаража, с вынесенным входом. Оно может использоваться как котельная, кладовая или хранилище для садового инвентаря
При этом параметры автомобильного помещения позволяют установить вдоль стен стеллажи, на которых можно будет разместить все инструменты для обслуживания машины.

Гараж с отдельным хозблоком Источник foamin.ru
Проект просторного гаража
Следующий проект – это основа максимально простого в строительстве помещения для автомобиля. Здесь нет отдельного хранилища, но зато есть достаточно свободного места для размещения всего необходимого. Такой гараж идеален для автомобилистов, которые много времени проводят в гараже. Свободное пространство можно обустроить при помощи комфортной мебели.

Просторный гараж на один автомобиль Источник drevolog.ru
Проект гаража на два автомобиля
Следующий проект рассчитан на размещение двух автомобилей. Здесь предусмотрен хозблок, который соединен с автомобильным помещением внутренним входом. Кроме того, подсобка в данной разработке проходная, и, если пристроить такой гараж к дому, можно сделать из нее вход в дом. На чертеже слева от хозблока обозначен навес для одной машины. Он может располагаться и справа от постройки или просто перед заездом в гаражное помещение. В любом случае навес повышает функциональность всей конструкции.

Гараж на два автомобиля с хозблоком Источник tr.decorexpro.com
Проект гаража с баней
Газобетонные блоки позволяют строить здания любой сложности. Поэтому некоторые домовладельцы, имея на участке достаточно места и немного дополнительных средств, возводят из газобетона не просто гаражи, а целые многофункциональные комплексы. Гараж можно совместить с летней кухней, террасой для отдыха или, как в данном примере, с баней.
В представленном варианте гаражное помещение вместе с хозблоком занимает правое крыло постройки. Кроме бани в постройке запланировано помещение под котельную
Стоит обратить внимание на то, что в этом проекте выход из гаража ведет через комнату отдыха бани. Для более удобного пользования и повышения безопасности банной части здания лучше продумать выход на улицу через котельную, а дверь из гаража в комнату отдыха не делать вообще

Гараж с банным комплексом Источник medike.ru
Проект коттеджа с пристроенным гаражом
Следующий пример демонстрирует самый распространенный вариант проектирования пристроенного гаража с внутренним входом. Дом с автомобильным помещением соединяется через буферную зону, роль которой в этом случае играет компактная постирочная. Вместо нее может быть обустроена котельная или просто проходная кладовая. Для максимальной защиты жилой части дома, выход из гаража отделен еще и прихожей. Если разделяющих буферных помещений не запроектировать, то в жилые комнаты будут проникать автомобильные запахи и испарения горючих веществ, которые часто хранятся рядом с автомобилем.

Гараж должен быть надежно изолирован от основного помещения Источник tuzhizhijia.com
Материалы, инструменты и оборудование для работы
Чтобы самостоятельно выполнить кладку стен из газоблока, для начала необходимо выбрать сам материал. Он выпускается в разных размерах с разной плотностью от D100 до D1200. Чаще всего для строительства дома приобретают газоблоки от D400 до D900: они идеально удовлетворяют потребности дома в теплоизоляции.
Кроме газобетона для работы понадобятся инструменты:
- пила;
- кельма;
- ковшик с зубцами или зубчатый шпатель;
- резиновая киянка;
- штроборез;
- терка;
- дрель с насадкой «миксер»;
- строительный уровень или лазерный нивелир;
- водный уровень;
- шнур для разметки;
- рубанок;
- рулетка;
- пульверизатор;
- кисточка с жесткой щетиной: широкая и узкая.
С помощью пилы можно будет распилить блоки, если понадобится определенный размер камня. Кельма пригодится для перемешивания и забора раствора, ковшиком или шпателем можно будет распределять раствор по камню.
Резиновая киянка пригодится для коррекции блока на кладке, а штроборез поможет сделать канавки для установки арматуры. С помощью терки можно повысить адгезию камня с клеем, дрелью с миксером легко перемешать раствор.
Также нужно несколько ведер: использовать бетономешалку в данном случае не получится, так как раствор слишком быстро высыхает. Придется делать смесь небольшими партиями.
Водный уровень необходим для нахождения горизонта, а с помощью шнура и саморезов устанавливают маяки, по которым кладут первый ряд. Необходим и пульверизатор для смачивания камня перед укладкой нового блока: это поможет сохранить раствор «живучим» некоторое время.
Из расходных материалов нужно подготовить клей: зимний или летний в зависимости от температуры во время выполнения кладочных работ.
Также потребуются:
- гидроизоляция;
- чистая вода;
- арматура диаметром 8-10 мм;
- u-образные блоки газобетона для обустройства перемычек над оконными и дверными проемами.
Размер гаража
Гаражное помещение может быть рассчитано на один или несколько автомобилей. Обычно возводят гараж на одну машину и рядом обустраивают открытое парковочное место с навесом. Однако в последнее время все чаще строят гаражи на два автомобиля. При необходимости построить гараж для трех или более машин используются индивидуальные проекты.
Чтобы определится с параметрами помещения для одного автомобиля, необходимо учитывать габариты машины, а также размеры всего оборудования и инвентаря, который нужно будет разместить рядом с машиной.
Минимальный размер гаража рассчитывается на основании параметров машины и без учета размещения инвентаря. При этом к длине, ширине и высоте автомобиля добавляют по 0,5 метра, и таким образом получают размерный минимум. Однако такие маленькие постройки возводятся, как правило, из легких материалов. В результате получаются экономичные переносные конструкции. Но из газобетона возводятся основательные постройки, в которых предусмотрено все для комфортной эксплуатации.
Размеры гаража на 1 автомобиль Источник drevolog.ru
Стандартные размеры гаража для одной машины следующие: 6 метров длина, 4 метра ширина, 2,3 метра высота. Этот стандарт используется при строительстве типовых гаражей и удовлетворяет потребности всех автолюбителей. В любом случае для удобного пользования нужно иметь в высоту около 40 см над головой стоящего человека и по 50 см со всех сторон от автомобиля до стен или стеллажей.
Для двух автомобилей расчеты производятся таким же образом. При этом нужно предусмотреть расстояние между двумя автомобилями минимум 1 метр. При проектировании двойного гаража часто планируется отдельный заезд для каждого автомобиля. В некоторых случаях предусматривается общий заезд и одни широкие ворота.
Размеры гаража на 2 машины Источник moydom.net.ua
Начинаем строить гараж из газобетона – подготовительные мероприятия
Решив выполнять строительство гаража из газобетона своими руками, следует подготовиться к выполнению строительных мероприятий:
- разработать проектную документацию или выбрать готовый вариант, соответствующий характеру почвы;
- выполнить необходимые расчеты, позволяющие точно определить потребность в материале;
- подготовить инструмент и предусмотренные проектом стройматериалы для выполнения работ.
Остановимся на особенностях выполнения каждого вида работ.
Проектирование гаража из газоблоков
Проектная документация разрабатывается с учетом следующих моментов:
- характера грунта;
- уровня расположения водоносных слоев;
- особенностей климата.
Строить гараж из газобетона начинают с выбора проекта, соответствующего индивидуальным требованиям
Возможен различный подход к проектированию:
- самостоятельная разработка проекта или рабочего эскиза;
- использование готовой проектной документации;
- заказ проекта на договорной основе в проектной организации.
Проект содержит следующие сведения:
- габариты гаража;
- конструктивные особенности строения;
- вид фундаментной основы;
- количество этажей;
- конструкцию кровли;
- вид отделки.
Принимая решение по габаритам и конструкции гаражного помещения, следует учесть количество размещаемых в гараже автомобилей, а также определить необходимость в обустройстве ямы для осмотра и подвала. После разработки проекта приступайте к следующему этапу – определению количества стройматериалов.
Как выполняется расчет материала
Алгоритм определения потребности в газобетонных блоках для строительства гаража несложный. Он основан на следующих сведениях:
- размерах газоблоков, составляющих 60х30х20 см;
- габаритах гаража, определяемых владельцем автомобиля;
- размерах въездных ворот;
- толщине стен, составляющей 20 или 30 см в зависимости от положения блока.
Для того чтобы понять алгоритм расчета, лучше воспользоваться вариантом со средними показателями
Расчет предусматривает следующие операции:
- Определение количества газоблоков в квадратном метре кладки.
- Вычисление потребности в материале путем перемножения количества блоков в квадратном метре на площадь газоблочной коробки.
Рассчитаем количество стандартных газоблоков для возведения гаража с высотой стен 2,3 м и габаритами 4х6 м. Порядок вычислений:
- Вычислите площадь газоблочной поверхности для тридцатисантиметровых стен: 0,2х0,6=0,12 кв. м.
- Определите количество газоблоков на квадрат кладки 1:0,12=8,3 штуки.
- Рассчитайте площадь поверхности стен: (4+6)х2х2,3=46 м кв.
- От суммарной площади отнимите площадь въездных ворот 46-2х2,5=41 м кв.
Перемножив реальную площадь газобетонных стен на количество блоков в квадратном метре, получим потребность в материале: 8,3х41=340,3 блока. Целесообразно незначительно округлить результат в большую сторону и приобрести на несколько блоков больше.
Подготовка материалов и инструмента
Кроме газобетонных блоков для постройки гаража потребуются следующие материалы:
- гравий, портландцемент и песок для бетонирования фундамента;
- прутки из арматурной стали для усиления фундаментной основы;
- деревянные щиты для постройки опалубки под фундамент;
- армирующая сетка для усиления газоблочный кладки;
- цементный раствор или клеевая смесь для кладки газоблоков;
- вязальная проволока для соединения арматуры при сборке каркаса.
После получения индивидуального проекта гаража, необходимо запастись набором инструментов и материалов, которые понадобятся во время строительства
Перечень инструмента и оборудования небольшой:
- бетоносмеситель;
- штроборез, шпатель с зубьями и щетки;
- уровень и отвес;
- резиновая киянка;
- лопаты и емкость для рабочего раствора.




































