Преимущества и недостатки
Каждая технология имеет свои плюсы и минусы. Каркасные гаражи не стали исключением, к ним это относится так же, как и к другим зданиям.

Главные преимущества заключаются в следующем:
- быстрота возведения;
- упрощенная конструкция фундамента;
- малый вес, возможность сборки без применения грузоподъемных механизмов;
- дешевизна строительства в целом в сравнении с капитальными сооружениями.
Но, к сожалению, оборотной стороной экономичности, легкости постройки является ее низкая, по отношению к кирпичу или бетону, прочность, посредственные теплоизоляционные показатели. Дерево обязательно обрабатывается специальным составом, во избежание развития гнили и разрушения.
Если других вариантов нет, то остается выбрать каркасный гараж. Тем более, что он не так уж и плох: его можно утеплить, защитить от воздействия атмосферы, сделать настоящим домом для автомобиля.

Выбор места под строительство: что следует учесть
Выбор места определяется несколькими критериями. Не будем сегодня говорить о тех случаях, когда требуется оформление отдельного участка под строительство гаража где-то на окраине города. Рассмотрим только варианты возведения на частной территории.
Довольно распространённой разновидностью является гараж-пристройка, примыкающая к дому. Однако специалисты не рекомендуют подобное расположение по причине токсичности выхлопных газов, ГСМ, пожаро- и взрывоопасности. Лучше всего возвести бокс на небольшом удалении от жилища. Если планируется смотровая яма, следует определиться с глубиной залегания грунтовых вод. В остальном же, место строительства гаража своими руками, зависит только от желания владельца с учётом удобства подъезда авто к этому сооружению.
Бывает, что приходится готовить место под гараж и так ФОТО: commonsensecart.com
Гараж 7 на 7 – проект, на что обратить внимание
Крыша
Какой бы вы не выбрали материал для постройки, обратите внимание на конструкцию крыши. Она должна быть надежной
На площади 49 м ² зимой может скапливаться очень много снега. Поэтому дополнительные опоры для силовой конструкции крыши будут очень кстати.
Дополнительные помещения
Не стоит рассчитывать на то, что все поместится в гараже. На самом деле, 7 на 7 – не такая уж и большая площадь для двух автомобилей. Небольшая кладовка, котельная и мастерская сделают гараж более аккуратным и комфортным.

Гараж с дополнительным помещением
Площадь постройки увеличится всего на десяток квадратных метров. Благодаря кладовке, на виду не будут лежать запчасти и запасная резина. Мастерская хороша тем, что её можно обогревать отдельно от гаража, а когда вы будете что-то материть, моно не бояться случайно зацепить автомобиль каким-нибудь тяжелым и твердым инструментом.
Отопление
Котельная нужна, только если вы собираетесь устанавливать котёл для обогрева гаража. Установку электрокотла в гараж еще как-то можно понять, но когда дело касается огня, лучше выделить отдельное помещение. Лично меня очень смущают самопальные котлы на отработке, устанавливаемые на расстоянии метра от автомобиля.
Ну а если вы решите построить гараж 8 на 8 метров, то в него можно уже будет в случае необходимости поставить 3 автомобиля.
Источник
Плюсы и минусы
Начнём с достоинств бруса как материала для строительства гаража:
- Дешевизна и доступность. Брус – едва ли не самый дешёвый строительный материал, который сейчас можно найти на рынке. Именно из бруса очень часто возводят не только гаражи, но и дома, бани, хозяйственные постройки. Дешевизна объясняется, прежде всего, простотой обработки. Из этого вытекает следующая особенность;
- Обработка бруса очень проста. Самый обычный брус – это опиленное с четырёх сторон бревно. Процесс обработки очень прост, для него не потребуется никакого дополнительного оборудования. По этим причинам конечный продукт получается недорогой, а приобрести его можно в десятках, если не сотнях торговых точек. Дефицита этого материала на рынке точно не наблюдается;
- Высокая прочность к механическим воздействиям, упругость;
- Хорошие теплоизоляционные качества. Правильно установленный брус держит тепло в несколько раз лучше, чем кирпич или пенобетон. Для обычного гаража таких теплоизоляционных свойств хватит с запасом, в нём будет комфортный климат и зимой и летом;
- Простота монтажа и сборки конструкции из гаража. Полностью построить небольшой гараж из бруса возможно за несколько недель и при минимальных затратах. Гараж или любое здание из других материалов придётся строить дольше в несколько раз;
- Постройки из бруса уже изначально имеют эстетичный внешний вид, их не нужно дополнительно облицовывать, как, например, стены из пенобетона.
Но, как и у любого материала, у бруса есть и свои минусы:
Многие виды бруса подвержены растрескиванию, особенно по центру. Для устранения такой проблемы используют специальные мастики и дополнительно обрабатывают дерево.
Смотровая яма
Смотровая яма
Ее обустройство возможно лишь при подъеме грунтовых вод ниже уровня 2,5 м. Если они подступают чуть выше, в районе ямы можно обустроить дренаж. Однако для этого понадобятся дополнительные трудозатраты и капитальные вложения. При высоком подходе грунтовых вод к уровню поверхности от строительства смотровой ямы лучше отказаться – ее просто затопит.
Стандартные размеры
Размеры смотровой ямы
Для комфортного осмотра и ремонта легкового авто размеры ямы должны быть следующими:
- длина: для определения этого параметра к длине автомобиля прибавляется 1 м¸ к примеру, (4,5 + 1) = 5,5 м
- ширина, на 200 мм меньше стандартного размера колеи авто (расстояния между колесами), в этом случае автомобиль сможет легко заехать в яму, не рискуя свалиться вниз; уточнить эти данные можно в технической документации
- глубина: чтобы взрослый человек смог в ней стоять, разогнувшись, этот параметр должен составлять 1,85-2,0 м
Котлован для смотровой ямы необходимо сделать чуть больше, чтобы оставалось место для бетонирования или выкладки стен кирпичом. Учитывать необходимо также толщину гидро- и теплоизоляционных слоев. При необходимости в стенах ямы можно предусмотреть ниши для размещения инструментов.
Отделка стен ямы бетоном
Для защиты от влаги на дно подготовленного котлована засыпается щебень, а затем песок. Сверху такая подушка засыпается слоем влажной глины и утрамбовывается. Далее на дно закладывается арматура, и оно бетонируется или выкладывается кирпичом. Чтобы бетон хорошо схватился, яму необходимо оставить на неделю для просыхания.
После истечения указанного времени на дно укладывается гидроизоляция, затем слой пенопласта (теплоизолятора), и оно вновь заливается слоем бетонного раствора небольшой толщины. Достаточно 15-20 мм.
Бетонные стены ямы укрепляют арматурой
Стены также желательно предварительно обмазать глиной, являющейся природным гидроизолятором. Поверх крепится толстая пленка или рубероид. Заменить ее можно битумом, жидкой резиной или пластинами из пластика. Далее крепится теплоизолятор.
Толщина стен при заливке бетоном составляет 15 см. При установке опалубки в нее укладывается арматура в виде металлической сетки или прутков.
Бетонный раствор заливается поэтапно по 0,3-0,4 м с последующим просыханием в течение нескольких часов. На каждом этапе заливки его хорошо проштыковывают для удаления пустот.
При прокладке освещения провода следует спрятать в гофру. Ее крепят к арматурной сетке с помощью пластиковых стяжек перед заливкой бетона. Предусмотреть необходимо естественную или принудительную вентиляцию смотровой ямы.
Защитить стены от осыпания можно с помощью металлического уголка, проложенного по периметру в верхней части. Желательно изготовить и прочную металлическую или деревянную крышку, чтобы исключить вероятность падения.
Для спуска в яму в ней оборудуются ступени. Хотя использовать для этих целей можно и обычную приставную лестницу.
Строительство и обустройство летней кухни на даче своими руками: проекты, дизайн, устройство, с мангалом и барбекю (60+ Фото & Видео) +Отзывы
Выбор материалов
Типовой проект дома 7х7 — это планировка, уже воплощенная в жизнь. Поэтому применяемые технологии и материалы, можно не только увидеть на примере, но и использовать при строительстве собственного коттеджа. Другое дело индивидуальное проектирование. Здесь можно использовать любые планировки, материал по желанию, согласно выбранной технологии строительства. Наряду с традиционным кирпичом и деревом, дополнительно применяются современные материалы пенобетон или газобетонные блоки, арболит или оцилиндрованное бревно, профилированный или клееный брус. Наиболее популярна технология каркасного строительства.
Из кирпича
Использование проекта дома 7 на 7 при строительстве домов на небольших участках оправданное решение. Он прекрасно вписывается в живописный природный ландшафт. Компактный снаружи, он вместительной планировкой внутри. Коттедж 7х7 из кирпича прочен, долговечен, пожаробезопасен, морозоустойчив, шумоизолирован и экологичен.
В данном проекте решение об устройстве мансарды или второго этажа весьма целесообразно. В этом случае участок под застройку остается тот же, а полезная площадь дома 7х7 увеличивается вдвое. Появляется возможность изменения планировки. Детскую комнату вместе с родительской спальней переносят на второй уровень, а на первом этаже организовывают дневную зону. Не помешает открытая веранда со стационарным мангалом.
Пеноблок – эконом-вариант

Современный материал из вспененного бетона не только теплый и экологичный, он еще и дешевый. Из пенобетона строить дом просто. Материал легкий, поэтому коттедж 7х7 не нуждается в мощном фундаменте, что значительно удешевляет бюджет постройки. Но пенобетон довольно хрупкий. Некоторые участки, подверженные излому, нужно усиливать арматурой, создавая так называемый армопояс. Еще один недостаток материала – гигроскопичность, поэтому постройка из пенобетона нуждается в дополнительной облицовке стен.
Из профилированного бруса
Строительство деревянных домов в России традиционно. Но в последнее время бревно заменяют профилированным брусом. Это намного удобнее. Собирать такой дом 7х7 намного легче. Система шип-паз позволяет плотно соединить соседние брусы по длине, зазоры между ними должны максимально уменьшиться. В срубе из бревна каждый стык приходится конопатить. Коттедж 7х7 из профилированного высушенного бруса практически не дает усадку.
Виды перекрытий

Схема односкатной крыши.
Сейчас в качестве перекрытия крыши гаража используются следующие виды:
- сборные железобетонные плиты;
- деревянные перекрытия, которые затем покрываются шифером, металлическим профилем или металлочерепицей;
- монолитные железобетонные плиты.
Все указанные перекрытия можно выполнить своими руками, для этого необходимо иметь элементарные строительные навыки.
Как перекрытие гаража можно использовать сборные железобетонные плиты, длина которых бывает разной – от 0,3 до 6,3 м. Их можно приобрести или сделать своими руками. Если возникает необходимость, то пустотелые конструкции можно сверлить, при этом отверстие не должно быть в диаметре больше 150 мм и нельзя нарушать целостность ребер жесткости.
Также в качестве перекрытия могут быть использованы монолитные железобетонные плиты. Они опираются на несущие стены, а толщина зависит от размера используемой арматуры, расстояния между пролетами.

Схема двускатной крыши.
Хотя делать самому такие конструкции достаточно сложно, но при соблюдении определенных правил сделать всю работу можно и самим.
Перед тем как приступить к изготовлению, необходимо определиться с толщиной будущей плиты, обычно 12 см вполне достаточно. Если над гаражом планируется возведение жилого помещения, то такой толщины будет мало, так как она не сможет обеспечить достаточную шумоизоляцию. Для указанного варианта строительства необходимо, чтобы толщина была не меньше 15 см.
Если вы будете делать плиты своими руками, то можно сделать их любого размера, но обычно он составляет 250х300 см. Основу конструкции составляют швеллера, которые закрепляются на стене.

Основные элементы односкатной крыши: 1 – каркас панели перекрытия; 2 – нижняя обшивка из досок; 3 – пароизоляция; 4 – верхняя обшивка; 5 – гидроизоляция; 6 – утеплитель; 7 – теплоизолирующая прокладка; 8 – стеновая панель; 9 – связующие доски; 10 – карниз.
Теперь можно приступать к сооружению опалубки, которая также делается своими руками из деревянных щитов, фиксируемых подпорками. Для сооружения щитов достаточно досок толщиной 20 мм. Если размер плиты составляет 250х300 см, то необходимо четыре щита размером 125х150 см каждый. Как опору можно использовать доски необходимой высоты или брус. Чтобы обеспечить надежность конструкции, на один щит устанавливают не меньше 8 подпорок. Также можно использовать фанеру, она предотвратит вытекание бетонной смеси из опалубки.
После установки опалубки при помощи труб, арматуры и сетки для штукатурки проводится армирование всей конструкции. Трубки привариваются к балкам и образуют решетку, затем устанавливают более мелкую арматуру.
Теперь можно приступать к процессу заливки раствором. Он состоит из одной части цемента, одной части щебня и двух частей песка. Раствор заливается не спеша, чтобы успевал выходить воздух, и не на всю толщину плиты, оставляют зазор высотой 3 см. Через два дня, когда раствор схватится, можно будет залить оставшуюся высоту. Для последнего слоя используется раствор, в состав которого входит одна часть цемента и 3 части песка.
Если у вас нет возможности сделать монолитные плиты перекрытия своими руками, можно приобрести сборные пустотные плиты.
Обшивка стен
Для этих целей нередко используют вагонку, но она недешева. Хотя, по эксплуатационным качествам, вагонка лучше, чем пластик либо ДСП, которые так же используют для обшивки.
Большое значение имеет необходимость утепления гаражного бакса. Ежели оно не требуется, то все работы могут свестись к обычному окрашиванию стенок, да устройству вентиляции.
В тех вариантах, когда утеплиться нужно, выбор в для отделки будет уже наиболее широким – от пластмассовых панелей, до гипсокартонных листов с следующей отделкой.
Лишь необходимо задать для себя вопросик – а стоит ли делать таковой ремонт в помещении, которое является по собственной сущности техническим?
Важно подобрать среднее соотношение цены в и получаемых эксплуатационных свойств. Куда больше, чем прекрасный наружный вид, тут принципиальна стоимость вопросика и свойства используемых в. Они должны быть:
Они должны быть:
Куда больше, чем прекрасный наружный вид, тут принципиальна стоимость вопросика и свойства используемых в. Они должны быть:
- Немаркими
- Влагостойкими
- Негорючими
- Прочными
Конечно, подобрать дешевый, крепкий, не пачкающийся и водостойкий при этом, не получится. Во всем необходимо находить компромисс.
Обработанная особыми составами вагонка – неплохой, но не самый дешевенький вариант.
Пластиковые панели непревзойденно смотрятся, влагостойки, просто устанавливаются и выдерживают перегрузки.
Но есть минус – они хорошо горят.
Можно стенки вообщем ничем не отделывать, а просто покрасить.
Проекты гаражей на две машины
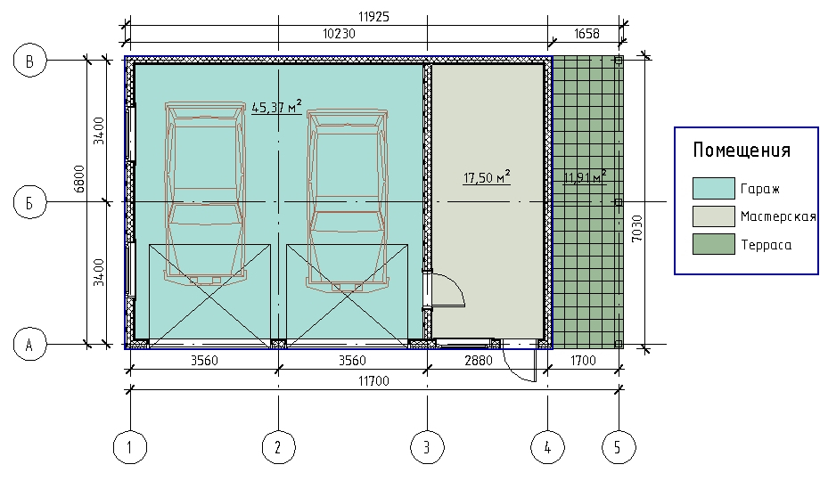
Гараж на две машины обычно строится на своем участке, поэтому нелишним будет расположить в этом здании террасу, мастерскую или другое техническое помещение. Предлагаем несколько проектов гаражей, которые изготовлены из деревянных панелей на каркасе.

Первый проект — помещение с гаражом на две машины с небольшой мастерской в 17,5 м2, которую можно использовать для столярных или слесарных дел, либо для хранения важных инструментов. По плану в мастерской не предусмотрено окно, если оно необходимо, следует его добавить в чертеж. Справа от входа в гараж предлагается построить узкую террасу с размерами 1,7 на 7 метров.

Второй проект — гараж на две машины, за перегородкой которого находятся еще два подсобных помещения для хранения инструментов, сменных колес, емкостей с маслом. Если вам эти комнатки не нужны, вы можете удалить их из плана, получив чертеж гаража на два автомобиля без дополнительных зон.
Заключительный вопрос, волнующий автовладельцев — будущих строителей каркасного гаража. Это цена. На ремонтных порталах просчитана минимальная стоимость конструкции на 2017 г. На каркас гаража уйдет минимум 35 тысяч рублей. На двойные рольворота с электроподъемником — минимум 100 тысяч. Еще несколько десятков тысяч пойдет на «пирог» стен: на сайдинг, утеплитель, гипсокартон, ветрозащиту.
Строители в интернете рассчитывают, что построить каркасный гараж на две машины (особенно используя каркас из древесины) стоит дороже, чем возвести аналогичную по размерам конструкцию, но из пенобетона. Так как пенобетон не надо дополнительно утеплять, обшивать и гидроизолировать.
Зато с каркасным гаражом можно сэкономить на рабочих руках, для его возведения не понадобится бригада. Достаточно одного руководителя (вас) и одного подсобного рабочего (вашего товарища).
Инструменты и материалы
Для возведения гаража из дерева, то есть с несущим каркасом из этого материала, понадобятся, соответственно, брус – сплошной или клееный из досок, а также некоторое количество плит ОСБ для обшивки. Дальнейшие действия зависят от конструкции гаража, типа кровли, габаритов.
Из инструментов обязательно будут нужны:

- Молоток.
- Уровень.
- Отвес.
- Рулетка.
- Электро- или аккумуляторная дрель.
- Угловая шлифмашина с насадкой для резки дерева (опционально).
Конкретные действия сборщиков зависят от степени подготовленности к монтажу – древесина уже размечена, порезана на детали (стойки, балки, подкосы) или все придется делать «с нуля». В первом случае время на возведение здания значительно сокращается.

Разработка проекта
Определившись с типом гаража, переходят к следующему этапу – составление проекта. На этом этапе специалистам нужно как можно подробнее выразить свои пожелания. Проектанты должны обладать следующей информацией:
Определение бюджета. После выполнения расчётов и получения определённой суммы, необходимо накинуть небольшой запас денег. Теоретические показатели почти всегда не совпадают с практической реализацией.
Гараж из дерева может обойтись дороже металлической конструкцииИсточник vizada.ru
- Уточнение функциональности строения. Гараж нужен только для автомобиля или же планируется дополнительное хранение других вещей. Возможно, в нём будет мини мастерская. От этого зависят габариты постройки и устройство коммуникаций.
- Продумывание перспективы.Планируется ли в семье покупка ещё одного автомобиля. При положительном решении нужно проектировать гараж на два места под авто.
Финальные штрихи: внутренняя отделка гаража
Внутренняя отделка может быть совершенно разнообразной. При условии, что гараж утеплён, можно применить любой материал, без каких либо ограничений. Но следует понимать, что стены в гараже будут пачкаться, а значит, должны легко поддаваться чистке. Также нужно помнить, что механические повреждения для них будут «в порядке вещей». Поэтому пластиковые панели лучше отмести сразу. Неплохо выглядит отделка кафельной плиткой, но стоимость подобной облицовки будет значительной.
Более бюджетным является вариант с вагонкой, но её следует обязательно покрыть древесным лаком. В этом случае любая грязь и пятна ГСМ с неё легко смоются.
А мы предлагаем посмотреть на внутреннюю отделку гаражей, выполненную умельцами самостоятельно, без привлечения специалистов.
1 из 10
ФОТО: yandex.com
ФОТО: dekoriko.ru
ФОТО: tunesies.online
ФОТО: twitter.com
ФОТО: scottcarrollinaugural.com
ФОТО: doma.life
ФОТО: drive2.ru
ФОТО: adgnews.com
ФОТО: stroypomochnik.ru
ФОТО: remontnik.ru
Чертеж каркаса будущего гаража
Без проекта, составления подробной схемы с указанием размеров гаража, толщины стен, глубины заложения фундамента стройка не начнется. К делу следует подойти серьезно: несмотря на облегченную конструкцию, гараж обладает определенным весом, просто на грунт его ставить нельзя. Все узлы, детали каркаса стойки, балки рассчитываются или выбираются типовыми, после уточнения нагрузок.
Для металлического каркаса на стадии проектирования потребуется назначить тип сборки – сварка, на болтовых соединениях или комбинированная. Она определит трудоемкость и конкретную конфигурацию остова. Деревянные детали традиционно скрепляются гвоздями, стяжками, скобами. При отказе от «глубокого» проектирования, сборочной схемы необходимо составить хотя бы пошаговую зарисовку – с ней будет проще и быстрее выполнять сборку.

Некоторые источники умаляют роль чертежей и эскизов при строительстве гаража. Между тем, перенося свои идеи на бумагу, проще контролировать процесс, ведь в голове всего не удержишь, а любая мелочь, упущенная на начальной стадии, может изменить ход работ, заставить пойти на ненужные траты или замену материалов.
Фактически, от заказчика нужно понимание – каковы размеры будущего гаража, его длина/ширина/высота, где располагаются ворота и их тип (сдвижные, распашные двухстворчатые, с электроподъемником и так далее).

Виды каркасных гаражей
Как и дома, гаражные строения подразделяются на сложенные из камня, возведенные из стеновых панелей и облегченные, щитовые или каркасные. Последние не требуют устройства мощного фундамента, дешевле в строительстве. Каркасный домик – не значит карточный: это серьезное, долговременное сооружение, предназначенное для длительной эксплуатации.

По виду каркаса гаражи бывают металлические и деревянные. По функциональному назначению – объединенные с мастерской, на одну и 2 машины. В такой гараж можно, не опасаясь, поставить автомобиль, мотоцикл, пользоваться им, как «настоящим». Благодаря прочному несущему каркасу здание выдерживает значительные нагрузки, рассчитано на длительный срок службы.
Виды перекрытий
Схема односкатной крыши.
Сейчас в качестве перекрытия крыши гаража используются следующие виды:
- сборные железобетонные плиты;
- деревянные перекрытия, которые затем покрываются шифером, металлическим профилем или металлочерепицей;
- монолитные железобетонные плиты.
Все указанные перекрытия можно выполнить своими руками, для этого необходимо иметь элементарные строительные навыки.
Как перекрытие гаража можно использовать сборные железобетонные плиты, длина которых бывает разной – от 0,3 до 6,3 м. Их можно приобрести или сделать своими руками. Если возникает необходимость, то пустотелые конструкции можно сверлить, при этом отверстие не должно быть в диаметре больше 150 мм и нельзя нарушать целостность ребер жесткости.
Также в качестве перекрытия могут быть использованы монолитные железобетонные плиты. Они опираются на несущие стены, а толщина зависит от размера используемой арматуры, расстояния между пролетами.
Схема двускатной крыши.
Хотя делать самому такие конструкции достаточно сложно, но при соблюдении определенных правил сделать всю работу можно и самим.
Перед тем как приступить к изготовлению, необходимо определиться с толщиной будущей плиты, обычно 12 см вполне достаточно. Если над гаражом планируется возведение жилого помещения, то такой толщины будет мало, так как она не сможет обеспечить достаточную шумоизоляцию. Для указанного варианта строительства необходимо, чтобы толщина была не меньше 15 см.
Если вы будете делать плиты своими руками, то можно сделать их любого размера, но обычно он составляет 250х300 см. Основу конструкции составляют швеллера, которые закрепляются на стене.
Основные элементы односкатной крыши: 1 – каркас панели перекрытия; 2 – нижняя обшивка из досок; 3 – пароизоляция; 4 – верхняя обшивка; 5 – гидроизоляция; 6 – утеплитель; 7 – теплоизолирующая прокладка; 8 – стеновая панель; 9 – связующие доски; 10 – карниз.
Теперь можно приступать к сооружению опалубки, которая также делается своими руками из деревянных щитов, фиксируемых подпорками. Для сооружения щитов достаточно досок толщиной 20 мм. Если размер плиты составляет 250х300 см, то необходимо четыре щита размером 125х150 см каждый. Как опору можно использовать доски необходимой высоты или брус. Чтобы обеспечить надежность конструкции, на один щит устанавливают не меньше 8 подпорок. Также можно использовать фанеру, она предотвратит вытекание бетонной смеси из опалубки.
После установки опалубки при помощи труб, арматуры и сетки для штукатурки проводится армирование всей конструкции. Трубки привариваются к балкам и образуют решетку, затем устанавливают более мелкую арматуру.
Теперь можно приступать к процессу заливки раствором. Он состоит из одной части цемента, одной части щебня и двух частей песка. Раствор заливается не спеша, чтобы успевал выходить воздух, и не на всю толщину плиты, оставляют зазор высотой 3 см. Через два дня, когда раствор схватится, можно будет залить оставшуюся высоту. Для последнего слоя используется раствор, в состав которого входит одна часть цемента и 3 части песка.
Если у вас нет возможности сделать монолитные плиты перекрытия своими руками, можно приобрести сборные пустотные плиты.
На чем можно сэкономить
Можно ли уменьшить стоимость постройки вашего гаража? Можно, используя следующие хитрости:
- полностью отказаться от штукатурки гаражных стен;
- не делать бетонный пол, оставив грунт в качестве основания;
- не сооружать подвал, в последствии выкопать в грунтовом полу смотровую яму;
- приобретать строительные материалы на рынке, торгуясь с продавцами;
- делать закупки в межсезонье.
Однако ни в коем случае не рекомендуется:
- экономить на качестве цемента, если вы решились делать стяжку, основу для стен, строя капитальный гараж;
- выбирать дешевые ворота;
- покупать профильную трубу или арматуру подешевле в ущерб качеству.
Помните, что строительство гаража потребует много сил, это хлопотное дело. Произвести расчет можно, используя советы из статьи. На качестве материалов лучше не экономить, так как потом ремонтировать гараж выйдет дороже. Если вы не уверены в своих силах, сомневаетесь в возможности построить гараж самостоятельно, лучше накопить денег и нанять специалистов. Иначе рискуете столкнуться с затяжной постройкой, которая будет не в радость, а в тягость. Однако если у вас есть помощник и небольшой (но все же опыт!) в строительстве, построить гараж за один летний месяц для вас вполне реально.
Источник
Изготовление ворот
Одним из ключевых моментом проектирования гаража является выбор типа ворот.
Строительство гаража на 2 автомобиля.
Используются различные системы воротных конструкций, среди них:
- распашные;
- откатные;
- подъемные.
Выбор зависит от габаритов проема и выбранного механизма.
Чтобы изготовить распашные ворота, составим проект. Нарисуем эскиз, укажем размеры всех деталей. Каркас наших ворот будет состоять из профилированной трубы или уголка.
Болгаркой нарезаются нужные размеры, свариваются между собой. Установка производится с помощью петель, которые привариваются к раме гаражных ворот. Сверху обе половины обшиваются листовым металлом. Перед покраской врезается замок.
Заделка щелей
Расчет односкатной крыши гаража.
Протечки крыши происходят не только через щели между плитами, но и через дефекты самих плит. Убрав слой старой гидроизоляции, вы сможете увидеть все эти дефекты. Если щели шириной более 5 мм, то их предварительно заполняют пеной, а потом цементным раствором. Чтобы он лучше соединился с поверхностью плиты, ее надо предварительно смочить водой. Для заделки щелей можно использовать кровельную мастику или клей для керамической плитки, а все работы можно выполнить своими руками.
Если произошло частичное разрушение плиты по краям, то их хорошо очищают, обрабатывают грунтовкой и при помощи бетонной смесь восстанавливают.
Поверхность плиты должна быть ровной, а лучше всего чтобы она была гладкой. Даже небольшие впадины и выпуклости приводят к тому, что покрытие будет служить меньший срок. Очищенную поверхность обрабатывают грунтовкой, если имеются оголенные участки арматуры, их необходимо обработать ортофосфорной кислотой или любым преобразователем ржавчины. Это позволит остановить начавшийся процесс коррозии.
Плита перекрытия гаража должна иметь уклон не меньше 3-5 градусов, если его нет, то при помощи цементного раствора необходимо сделать этот уклон.
Чаще всего в качестве гидроизоляции крыши используют простой или еврорубероид. Преимуществами еврорубероида является то, что он легче укладывается и имеет более длительный срок службы. Перед его укладкой не надо обрабатывать поверхность плиты битумом, поэтому все работы легко выполняются своими руками.
Для укладки еврорубероида его достаточно просто разогреть, тогда как простой рубероид укладывается на слой мастики или слой битума. При правильной эксплуатации срок его службы до 25 лет, что в 5 раз больше, чем у рубероида. Такой материал стоит в два раза дороже, но благодаря своим преимуществам использовать его намного выгоднее. Если рубероид надо укладывать в два слоя, то еврорубероида будет достаточно и одного слоя. Чтобы избежать возможных протечек, гидроизоляция укладывается внахлест и минимум 10 см на соседний гараж.
Хотя еврорубероид и имеет много преимуществ, часто используется и простой рубероид, основной причиной является его более низкая стоимость. Перед тем как укладывать рубероид, рулон необходимо полностью раскатать, это надо для того, чтобы материал выровнялся.
Начинают укладывать с нижней точки, основание лучше обрабатывать мастикой, чем битумом, так как она более пластичная. Предварительно необходимо разогреть мастику до 200 °С, укладку проводят сразу же после ее нанесения. Слои укладываются внахлест, а стыки дополнительно обрабатываются мастикой.
Кровля для каркасного гаража на две машины
Устройство кровли необходимо производить по всем правилам, чтобы крыша выдержала снеговую нагрузку. Для гаража на две машины лучше соорудить каркас двухскатного типа с одинаковыми скатами.
Сначала с ровным шагом делают стропильную систему, для которой берут доски 100 на 50 и 100 на 25, а также соединительные элементы. Если крыша очень широкая, то необходимо установить больше распирающих балок, чтобы нагрузка была равномерной. Фиксирует кровлю конек.
Далее изготовляется обрешетка. Для гаража можно брать любой легкий материал:
- шифер;
- профнастил;
- металлическую черепицу;
- битумный лист.
На свес ставится водосток. В проем для въезда — ворота необходимого размера. Для каркасника лучше выбрать не распашные, а рольворота. Они значительно легче, хорошо вписываются в дизайн здания и не будут перекашиваться при небольшом проседании конструкции, если место для гаража было выбрано не очень удачное.
Процесс изготовления каркаса для гаража на две машины можно посмотреть на этом видео. Только учтите, что на записи каркасный гараж строится без установки фундамента (временная сборка).
https://youtube.com/watch?v=Qhg3rqC1C_w




































