Выбор материалов
Здание с мансардой, совмещенной с помещением для транспортного средства, должно быть изготовлено из крепких, надежных и экологически чистых материалов – как и любая другая постройка. Обычно для этого используют дерево, пеноблоки, газобетон, газосиликатные блоки или кирпичи: они соответствуют всем необходимым требованиям, хоть и отличаются друг от друга по многим характеристикам. Наиболее дешевым вариантом является строительство дома из блоковых элементов – например, из пеноблоков. Стоит также отметить, что сами строительные работы будут осуществляться максимально быстро и легко, но понадобится дополнительная отделка (чтобы улучшить теплоизоляционные свойства).

К сожалению, использование такого материала требует значительных денежных вложений и временных затрат на строительные работы. Однако это именно та ситуация, когда дороже – это лучше: правильно возведенное здание прослужит не один десяток лет и будет радовать очень хорошим качеством.
Для строительства подобных домов используют не только вышеперечисленные варианты, но и древесину, брус. Преимущества каркасного брусового здания – в очень эстетичном внешнем виде, возможности легко прогревать помещения в зимнее время года и несомненном ощущении уюта (благодаря способности поддерживать оптимальный уровень влажности). Такое здание легче возводить, чем кирпичное, но оно более пожароопасное. На усадку деревянного дома требуется много времени. Такие дома уступают кирпичным по долговечности.
Надстройка из кирпича или блоков
Если есть желание возвести над гаражом помещение для полноценного проживания в нем, то лучше отдать предпочтение облегченной конструкции из тех же брусьев, панелей и утеплителя. Но в данном случае главной проблемой таких надстроек являются грызуны, которые часто заселяются в нишах и слое утеплительного материала.
Во избежание таких неприятных моментов предпочтительным станет вариант устройства второго этажа из более прочных и плотных по структуре материалов:
После, стены оснащаются стропильной системой по аналогичной схеме, что и в предыдущем варианте устройства надстройки.
Если есть сомнения в несущей способности стен, то есть несколько вариантов их упрочнения:
- забить железные сваи;
- осуществить приварку профнастила поверх кладки;
- устроить опалубку по периметру строения;
- залить перекрытие бетонной стяжкой;
- утеплить стены;
- возвести второй ряд стен по всему периметру строения.
С таким подходом второй этаж получится отличным, но с одним существенным недостатком – это обойдется в хорошую копеечку.
Читайте дальше, как сделать вентиляцию и провести свет в построенном втором этаже над гаражом.
Строим частный дом с гаражом: полезные советы
Когда речь заходит о жизни за городом, на собственном участке, люди все чаще начинают обращать внимание на имеющиеся возможности для строительства гаражного помещения. Безусловно, частный дом с гаражом – это очень удобно
В городе важно иметь место для автомобиля вблизи от дома. А за городом это вдвойне нужнее: хозяева приезжают в свой собственный коттедж, сразу могут поставить машину в гараж, а при необходимости и осмотреть ее, отремонтировать прямо на месте
Разумеется, для грамотного строительства загородного дома с гаражом желательно иметь хорошо продуманный проект. Иногда будущие хозяева обращаются к профессиональной помощи, а в других случаях и самостоятельно создают планы, чертежи. Но проект нужен: именно в нем предусматриваются все основные характеристики помещений, их ключевые конструктивные, технические особенности. Хорошее решение – прибрести у мастеров готовый проект на свой вкус, либо заказать создание индивидуального проекта с учетом пожеланий.
Сегодня мы подробнее рассмотрим различные проекты частных домов с гаражами
Узнаем, как их грамотно создавать, на что обращать внимание в первую очередь, как не ошибиться с выбором конкретного варианта
На что стоит обратить особое внимание при совмещении гаража и бани
Итак, если вы уже решились на постройку банно-гаражного комплекса, то при составлении проекта следует учитывать следующие тонкости:
Проект гаража и бани с верандой размером 15х12 метров
- Обязательным условием совмещения этих двух помещений является обеспечение качественной гидроизоляции. Ведь в гараже образуются в большом количестве газы и жидкости, которые будут агрессивно вести себя по отношению к материалу фундамента здания. А для бани характерно наличие высоких температур и влажности, что также неблагоприятно скажется на состоянии основания постройки. Поэтому для того, чтобы продлить срок службы постройки, гидроизолирующий слой в ней должен быть качественным.
- Также необходимо обеспечить качественную тепло- и гидроизоляцию между помещением гаража и бани. Это связано с тем, что в этих помещениях создаётся высокая разность температур и влажности, что может спровоцировать разрушение шва стены. Для улучшения теплоизоляции между баней и гаражом специалисты рекомендуют возводить не одну, а две стены между ними. Между стенами советуют оставлять ливневую канавку.
Проект и планировка гаража с баней и мансардой
Кроме того, особое внимание следует уделить водоотведению от бани и гаража, а также обеспечению качественного водостока талых и ливневых вод. Это также позволит продлить жизнь фундаменту постройки
Какую кровлю предусмотреть в проекте дома с мансардой и гаражом: фото примеры
Обычно в типовых проектах домов с гаражом и мансардой предусматривается кровля, одновременно покрывающая основное здание и пристройку в виде гаража. Существуют варианты, у которых одно из мансардных помещений обустраивается над гаражом. Сразу можно предположить, что для таких зданий подойдет любой тип кровли, это наглядно отображено на фото проектов домов с гаражом на 2 машины. Как показывает практика, некоторые варианты экономически необоснованы, поскольку требуют значительных финансовых затрат. Кроме того, некоторые типы конструкции нельзя устраивать в определенном климатическом поясе из-за большой высоты строения.
В проектах небольшого дома с мансардой и гаражом наиболее подходящими типами кровли являются двускатные, вальмовые и полувальмовые, что наглядно отображают фото. Самым простым в исполнении вариантом является двускатная конструкция. Однако из-за такой кровли мансардное помещение будет маленьким, узким и неудобным.
Вальмовая и полувальмовая крыши относятся к четырехскатным. Благодаря таким ломаным конструкциям удается задействовать 90% площади мансардного помещения, получив при этом удобные жилые комнаты. Однако для проектирования подобных сложных конструкций понадобится помощь специалистов. Такие мансардные крыши выглядят весьма эстетично и оригинально, подчеркивая уникальность строения.

Для дома с мансардой наиболее подходящими будут двускатная, вальмовая или полувальмовая крыши
Большой популярностью пользуются проекты мансардных домов, у которых кровля строения и гаража является единым целым. Однако, с практической точки зрения наиболее удачным будет вариант, где верхняя часть гаража будет служить основой для создания террасы мансарды.
Варианты внутренней планировки дома с мансардой
Внутреннее расположение помещений выполняется с учетом требований заказчика на стадии разработки проекта гаража с мансардой – фото планировки наглядно демонстрируют различные варианты. Здесь все зависит от желаемого количества комнат, их предназначения, что определяется составом семьи и требованиями владельцев. Однако данные строения требуют особого внимания к определению варианта хода из дома в гараж и типа конструкции лестницы.

Мансарда может выступать в роли гостиной, кабинета или спальни
Комфортный и удобный подъем на этаж обеспечивает лестница с большим углом наклона. Следует учесть, что такая конструкция требует большого количества свободной территории. Разумным выходом из подобной ситуации является обустройство под лестницей практичной кладовой, книжных стеллажей или вместительного шкафа для одежды или бытовых предметов.
Компактную конструкцию имеет винтовая лестница. Однако она не отличается удобством. Но в случае выбора такой конструкции требуется продумать крутизну спирали, оптимальную ширину ступеней и высоту проступей.
Статья по теме:
Вход в гараж можно организовать непосредственно из дома. В этом случае необходимо продумать конструкцию тамбура. Должны быть предусмотрены мероприятия по снижению уровня шума и обеспечению надежного барьера от проникновения в жилое помещение запахов топлива и угарного газа. Проект гаража на две машины с мансардой владельцы оценят по достоинству во время непогоды. Несмотря на это, более рациональным все равно считается один вход в гараж с улицы.
Кирпичный замок
Если хочется создать жилище интересной архитектуры, стоит выбрать дом-замок с гаражом. Может показаться, что этот проект не рассчитан на большую семью. Однако на первом этаже такого жилища предусматривается гостиная. Благодаря этому в доме могут гостить друзья и родственники хозяев. Это же помещение часто обустраивается как рабочий кабинет.
Размеры замка выбираются в пределах 6х13,5 м. Стиль архитектуры дома основан на таких фигурах, как круг, восьмиугольник и прямоугольник. Данная композиция отличается привлекательным экстерьером и обладает высокой прочностью. Проекты одноэтажных домов с мансардой и гаражом выполняются исходя из материалов, предназначенных для постройки.

Дом-замок имеет довольно много внутреннего пространства. В башне, которая пристроена к дому, можно разместить уютную веранду или комнату отдыха. Гараж обустраивается в подвале. Это позволяет существенно сэкономить свободное пространство.
Такой дом может иметь следующие показатели:
- 5 помещений жилого назначения;
- 2 санузла;
- Возможность комфортного размещения шести человек;
- Общая площадь дома составляет 245 кв. м.

Необходимо добавить, что в эту площадь включены помещения жилого назначения, которые расположены на площади 86 кв. м. Различны комнаты вспомогательного назначения расположены на 53 кв. м, а веранда, лоджия и подвальное помещение занимают 106 кв. м.
Проекты домов с мансардой и гаражом: отличительные черты коттеджей
Дом с мансардой – фото наглядно отображают различные варианты – является наиболее рациональным решением для небольшого участка, позволяющим увеличить жилую площадь без сокращения земельных угодий. Наличие личного транспорта становится причиной еще одного популярного приема – строительства дома с гаражом.

Проект дома с мансардой и гаражом для одного автомобиля
Проекты коттеджей с гаражом и мансардой обладают рядом преимуществ:
- благодаря совмещению двух функциональных зон удается снизить затраты, связанные с разработкой проекта и выполнением строительных работ;
- смежное расположение жилой зоны и гаража создает комфортную обстановку в последнем, что приводит к снижению затрат, связанных с отоплением гаража;
- создание внутреннего прохода позволяет беспрепятственно перемещаться из комнаты в гараж, не выходя на улицу, что особенно удобно в период ненастья;
- создание мансардного помещения обеспечивает увеличение жилой площади, что особенно актуально для одноэтажных построек;
- компактное многофункциональное сооружение позволяет существенно сэкономить свободную площадь земельного участка;
- строительство мансарды обойдется значительно дешевле, чем возведение второго этажа;
- мансардный этаж позволяет дополнительно утеплить жилое помещение, избавив его от сквозняков;
- пристроенный гараж будет стоить намного меньше, чем отдельно стоящий элемент;
- строения имеют стильный и презентабельный внешний вид, заметно выделяющий их на фоне других построек.
Проект
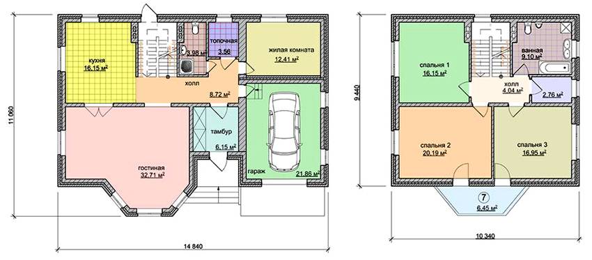
Проект гаража с мансардой составляется с учетом того, на какое количество автомобилей рассчитано сооружение. Если здание рассчитано на одну машину, то для транспортного средства достаточно будет площади 6х6 либо 6х8 квадратных метров. При необходимости размер внутреннего помещения можно увеличить в случаях, когда гараж эксплуатируется, как ремонтная мастерская.
Объем внутреннего пространство необходимо вычислить по размеру автомобиля. Длина внутреннего помещения должна превышать соответствующие габариты транспорта не менее, чем на 2-2,5 метра, ширина — на 1,5 метра.
Если гараж соединен с частным домом, то место для машины можно организовать под навесом. Под мансарду в таких случаях отводятся зоны за и над автомобилем. Еще один момент — будет ли помещение с баней или другими конструкциями, требующими подвода дополнительных коммуникаций.

Также следует учесть в проекте зону для монтажа и особенности лестницы, ведущей на второй этаж
Кроме того, нужно обратить внимание на то, для каких целей возводится мансарда, и предусмотреть установку дополнительных окон (обычно встраиваются в кровлю)
Каждый подобный нюанс следует отразить в плане. Чертеж обязательно наносится на миллиметровую бумагу. В плане также рекомендуется указать тип используемых материалов, характер расположения сооружения относительно других объектов на участке и множество других особенностей.
В связи с тем, что составить проект гаража с мансардой достаточно сложно, рекомендуется заказать план сооружения в соответствующих организациях, специализирующихся на таких конструкциях.

Система отопления и особенности утепления стен
Установка в помещение встроенного газового камина позволит сделать интерьер более современным. Отопление в гараже может функционировать от:
- Электричества;
- Твердого топлива;
- Паровой среды;
- Природного газа (потребуется привлечение специалистов газовой службы).
Для сохранения тепла внутри помещения, рекомендуется выполнять внутреннюю обшивку теплоизоляционным материалом. Выбор материалов основывается на характеристиках материала стен. Для кирпичных стен подойдет любой теплоизолятор, пригодный для использования в жилом помещении.
Совет! При выборе утеплителя особое внимание стоит уделить его толщине. Показатель толщины зависит от стен – чем они тоньше, тем толще потребуется теплоизоляционный слой
Для утепления гаража своими руками используется:
- Пенопласт;
- Минвата;
- Стекловата;
- Светоотражающие теплоизоляторы;
- Штукатурка;
- Теплоизоляционные красители.
Совет! Самый недорогой способ утеплить стены гаража – это приклеить на стены листы пенопласта, предварительно очистив и обезжирив поверхность стен. Стыки и образовавшиеся щели закрываются при помощи монтажной пеной.
Строительство дома из пенобетона своими руками
Имея на руках готовые успешные проекты домов из такого материала, как пеноблок, можно самостоятельно определиться с тем, какой именно дом соответствует вашим представлениям о семейном гнездышке.
Возведение мансардного этажа в коттедже из пеноблоков
Если участок под строительство здания имеет популярные параметры, например, 6X8 или 8X10, то сделать выбор будет совсем несложно
Для начала самостоятельного строительства частного дома важно знание технологических моментов и наличие опыта
Возведение даже небольшого по площади здания является серьезным капиталовложением, поэтому отнестись к каждому этапу работ следует ответственно. Но и в том случае, если строит дом специализированная компания, домовладелец должен хотя бы теоретически уметь разбираться в этапах строительства и тонкостях такой работы.
Фундамент и цокольный этаж
Предварительные расчеты, устройство фундамента и цоколя:
Необходимо провести точные расчеты стройматериалов. Для этого подсчитывается общая площадь стен будущего здания. Из полученной цифры высчитывается площадь под двери и окна. Полученный результат делится на площадь боковины одной единицы пенобетона.
Размеры блоков должны быть подобраны с учетом области их применения. Так, для стен берутся одни пеноблоки (200 х 300 х 600), а для перегородок другие (300 х 100 х 600). При расчетах нужно помнить, что первая цифра этих параметров определяет высоту изделия. Нужно определиться с типом фундамента. Делается это с учетом специфических особенностей пеноблока. Для разных условий и почв это может быть разная конструкция фундамента под здание из пеноблоков, с тем только условием, чтобы она была обязательно дополнительно армирована поясом из арматурных прутьев
Эта предосторожность необходима из-за того, что ячеистая структура блоков из пенобетона делает их слабыми на изгиб. Высота цоколя для пенобетонного дома должна быть не ниже 40 см
Кладка стен
Тонкости кладки первого ряда:
- Перед тем как осуществить кладку первого слоя блоков, необходимо тщательно проверить горизонтальность цокольной поверхности. Все углы цоколя должны быть на одной строгой линии. Прежде чем поднимать стены, обязательно проводят гидроизоляцию всего фундамента.
- Для кладки пеноблоков предпочтительно использование вместо цемента специального клеящего состава, который при минимальных швах в 2 мм, обеспечивает максимальную прочность и хорошую теплоизоляцию стенам. Клеящий состав должен быть нанесен на нижнюю часть блоков, на боковые стороны материала и на основание (цоколь). В процессе этой работы требуется постоянный контроль качества кладки по строительному уровню и шнуру.
- В том случае, если целые пенобетонные блоки не помещаются в одну линейку, то обрезать стройматериал можно самостоятельно при помощи простой крупной ножовки. Пилить нужно только под прямым углом. Если во время кладки образуются неровности, их необходимо убрать тут же, используя, например, рубанок для гипсокартона.
- Как только первый слой кладки будет завершен, его нужно будет армировать. Для этого по нему в два ряда укладывается арматура. Укладка арматуры должна быть сделана аккуратно, строго в небольшие, вырезанные для этой цели пазы, которые заранее подготавливаются при помощи болгарки. Делая пазы нужно отступать от края блока на 8 см. Уложенную в пазы арматуру обязательно заполняют клеящим составом.
- Двустороннее армирование необходимо делать и в зонах перекрытий, а также в проемах окон и дверей. Для дополнительной прочности, в пазы устанавливаются металлические уголки, длина которых должна быть больше размера проема на 50 см.
Чтобы связать куски арматуры, используют вязальную проволоку из мягкой стали.
- Кладка следующих рядов пенобетона осуществляется по тому же принципу, что и кладка первого ряда. Вначале любого ряда в первую очередь укладываются угловые блоки, между которыми натягивается шнур. Нижний ряд очищается от пыли и смазывается клеем. Пенобетонный блок, смазанный клеящим веществом по боковым граням и снизу, устанавливается на свое место киянкой.
Подбираем ворота – сим-сим, откройся!
Сегодня в продаже есть модели ворот, оснащенные дверями. В нашем случае это идеальное решение, которое позволит избежать частого мучительного поднятия полотна. Да и на сколько открытий рассчитаны гаражные ворота на автоматике? Проще для домочадцев и долговечнее для изделия, не поднимая лишний раз полотно, войти в дверь.

Члены семьи, наверняка, будут посещать помещение с мансардой чаще, чем ожидалось. Заботясь об их здоровье, необходимо предупредить утечку тепла, отдавая предпочтение “утепленной” версии. Впрочем, как и в случае с окнами. Так, утепленное полотно ворот с обратной стороны оснащено дополнительным слоем жести. Внутрь “сэндвича” помещается термоизоляционный материал, чаще всего полистирол. Очевидно, что подобный вариант дороже обычного, но разница в стоимости несопоставима с расходами на теплоэнергию.

Отметим, что автоматические ворота открываются дистанционно, с помощью пульта управления. Однако входные двери запираются вручную, как традиционные. Настоятельно рекомендуем присмотреться к секционным подъемным моделям, экономящим квадратные метры.
- 5
- 4
- 3
- 2
- 1
Решение простых важных вопросов
С последним пунктом проще всего, санузел ставят на том этаже, где больше проводишь времени. Проще всего поставить на нижнем этаже, меньше проблем с разводкой канализации и больше свободного пространства на мансарде. Обойтись без туалета не получится, если внутри помещения гаража вы проводите подряд больше 10-12 часов, если в проекте свободное место, сделайте две точки, на первом этаже и мансарде.
С удобствами неразрывно связана главная головная боль проектов с мансардой, а именно — обустройство лестницы на второй этаж. Если мансарда для вас — всего лишь склад, то правильным будет сделать откидную лестницу пожарного типа, как на фото.

Для гаражей, у которых площадь мансарды достигает 30 и более метров, нужно делать лестницу винтом или в виде двух маршей змейкой. Такой проект лестницы можно использовать в любых вариантах гаражей, даже самых малогабаритных.
Если мансарда по проекту будет использоваться в качестве полноценного жилья, то есть смысл сделать наружную лестницу. Возможно, это не украшает постройку, но такое решение намного удобнее и практичнее внутренних переходов. Это безопаснее, с точки зрения пожарных, и не нужно вдыхать выхлопные газы.
Помещение бокса для автомобилей и пространство мансарды должны соединяться герметично закрываемой дверью, кроме того, на каждом этаже по проекту должна быть своя система принудительной вентиляции.
Интересные проекты гаража с мансардой
Для обустройства полноценного жилого варианта мансарды лучше всего подойдет проект гаража на два автомобиля с полезной площадью второго этажа 70 м2. Здание высотой почти в 8 м строится из пенобетона на ленточном фундаменте. Кровля из металлочерепицы настилается на наслонные стропила из бруса. Для утепления используется минволокно, перекрытия изготавливаются из пустотелых бетонных плит.

Особенностью проекта является наличие внешней лестницы для второго этажа мансарды. Вход в жилое помещение расположен на втором этаже, за счет использования ломаной крыши входная дверь находится на одном уровне с мансардой. В проекте есть крыльцо с навесом, опирающимся на стойки из бруса. По признанию специалистов, подобное оформление входа в мансарду является одним из самых удачных, как с точки зрения дизайна, так и технологии строительства.

Площадь мансарды разбивается на две спальни, гостиную, санузел, ванную и кухню. По сути, на втором этаже гаража по проекту хватает места, как для полноценного одноэтажного дома.

Наличие отдельного входа позволяет использовать первый этаж не только в роли гаража, но и для ремонта или обслуживания автомобилей на коммерческой основе.
Если предыдущий проект показался вам чересчур затратным, можно построить гараж меньших размеров в стиле деревенского дома. Такое решение больше подходит для гаража на загородном участке или даче.

По проекту коробка гаража строится из газобетона или пеноблоков на свайном или ленточном фундаменте. Перекрытие изготавливается из армированного бетона, что позволяет усилить верхний пояс коробки из пеноблоков. Благодаря использованию двух полувальм в конструкции крыши, здание смотрится более выразительно. Кроме того, такое решение позволяет снизить нагрузку на верхнюю часть фронтонов крыши. Используемый для стропил брус 100х100 мм, мощная обрешетка и большой угол наклона скатов в 38о дает возможность использовать керамическую либо цементно-песчаную черепицу.

По проекту размеры первого этажа 7х7м, общей площадью в 40 квадратов, позволяют поставить две легковые машины и прицеп. Жилое помещение мансарды занимает 19м2, что в принципе достаточно для дачного или загородного варианта гаража. Этажи соединяются полувинтовой лестницей из бруса и сосновой рейки. По проекту здание не отапливается, поэтому внутри помещения нет санузла или котельной.
Разумеется, конструкции гаражей с мансардой не ограничиваются только огромными постройками, размером в полноценный жилой дом. При желании можно найти проект и перестроить уже имеющийся гараж 5х6 м в постройку с мансардным этажом.

В этом случае размеры мансарды уменьшатся до 12 м2, при высоте потолков 180 см. Из-за этого скаты крыши приходится делать относительно покатыми, с углом наклона до 27о. Здание получилось очень компактным и удобным, но небольшие размеры мансардного помещения вряд ли позволят использовать его в качестве жилого. Скорее это будет склад или место хранения ненужных вещей.
Если коробка гаража первоначально возведена из кирпича, то мансарду можно достроить каркасно-щитовым способом или дополнительными рядами пеноблоков, стянутыми арматурой. Нижний этаж утепляют ЭППС, и всю постройку зашивают сайдинговыми панелями. Крышу и потолочное перекрытие изготавливают из бруса и плит ОСБ.
Заключение
Мансарда над гаражом – один из вариантов удачного распределения пространства и разделения постройки на функциональные зоны. Тщательно продумав планировку, получите ряд преимуществ и дополнительных возможностей. При выборе строительной компании, которая претворит вашу задумку в жизнь, следует учитывать опыт работы при выполнении подобных проектов.
Прочитать позже
Отправим материал на почту
Распечатать
Длина гаража:
Практичный минимум должен составлять 6 м, при этом оставшееся пространство используется для полок для хранения инструмента или как мастерская.
Как бы вы не использовали мансардный этаж — одно из его главных преимуществ, что шумы не достигают главного дома — самое место для мастерской или музыкальной студии.
Автономный гараж на две машины не должен быть слишком большим, чтобы не доминировать над домом.
Гараж может быть местом не только для автомобиля. Дополнительная площадь позволит вам хранить садовое оборудование и инструменты или предметы домашнего обихода , которых негде «втиснуть».
Практичный вариант гаража для семьи с частыми визитами гостей — дополнительная стоянка под навесом рядом с гаражом и гостевая комната в мансарде.
Задняя часть гаража, обращенная в сад используется как зона отдыха с мангалом.
- гараж 31,88 м²,
- места для хранения 6,69 м²,
- туалет 3,18 м²
Планировка мансардного этажа:
- прихожая 4,47 м²,
- кухня 9,86 м²,
- комната 8,45 м²,
- ванная 3,03 м²,
- балкон 8,17 м².
Если вы ищите проект гаража, которые включает в себя приятные бонусы, то обратите внимание на это решение — гараж с беседкой с мангалом
Полезная площадь гаража 17,5 м², общая площадь мансарды 38,3 м², полезная 7,3 м²
Двухэтажный гараж, отдельно стоящий, из кирпича с двускатной крышей.
В задней части постройки есть кухня и ванная комната, внешняя лестница ведет на мансардный этаж.
Планировка гаража:
- 1.1 — ванная 4,35 м²
- 1.2 — мастерская 5,71 м²
- 1.3 — кухня 14,52 м²
- 1.4- гараж 34,51 м²
- 1.5 -терраса 32,15 м²
Площадь второго этажа почти 40 м2 была разделена на 2 комнаты плюс дополнительная ванная комната и холл. Эта часть здания может быть выделена в студию, помещение под аренду или квартиру для ваших гостей.
Планировка мансарды над гаражом:
- 2.1 — лестница 4,11 м²
- 2.2 — балкон 9,81 м²
- 2.3 — холл 12,63 м²
- 2.4 — ванная 4,90 м²
- 2.5 — комната 7,79 м²
- 2.6 — комната 14,40 м²
Чтобы лучше использовать полезное пространство гаража можно совместить постройку с небольшой террасой с видом на сад.
Планировка гаража и мансарды:
- гараж 29,90 м²
- кладовка 5,20 м²
- коридор 5,40 м²
- терраса 20.00 м²
- лестница 5,00 м²
- прихожая 13.00 m²
- ванная 4,60 м²
- спальня 9,70 м²
- гостиная 11,30 м²
- кухня 4,40 м²
Если вы планируете построить двухэтажный гараж с квартирой на чердаке, этот проект может оказаться настоящим хитом. Гараж представляет собой классическое кирпичное здание в форме, увенчанное крутой двускатной крышей. Традиционная архитектура гаража позволяет легко вписывать в любую среду.
Двое ворот, 260 х 224 см, ведут к гаражной части, запланированной на первом этаже. Внутри можно легко припарковать три машины, есть также место для велосипедов, косилок, мотоциклов или другого оборудования. Дополнительные функции хранения или небольшой мастерской будет выполнять небольшое подсобное помещение, размещенное в углу гаража.
Планировка мансарды над гаражом:
- 2.1 — холл 14,16 м²
- 2.2 — кухня 4,17 м²
- 2.3 — ванная 3,59 м²
- 2.4 — комната 18,76 м²
- 2.5 — комната 15,29 м²
- 2.6 — балкон 4,86 м²
При планировании постройки гаража стоит задуматься об использовании пространства возле него , так этот проект гаража расширяет свою функциональность с помощью небольшого навеса, который служит дополнительным местом для парковки, а с другой стороны — является балконом для второго этажа.
Любое дополнительное пространство в гараже , такие как, полки , рабочие столы и шкафы , позволит более широко использовать эту площадь для различных целей. Чем больше места в гараже, тем удобнее будет им пользоваться.
Мечта многих водителей — хорошо оборудованная небольшая домашняя мастерская, которую, в идеале, хотелось бы использовать как свое личное пространство, и ваш гараж идеально подходит для этой цели.
Давайте подумаем о гараже в более далекой перспективе — ведь, жаль не использовать его для других целей. Из захламленного редко используемого помещения вы можете создать просторный, практичный и функциональный интерьер, который будет использоваться каждым членом семьи.
Что вы думаете о мансарде над гаражом? Мы что-то забыли или вы с чем-то не согласны? Пишите свои : все предложения приветствуются.




































