Устройство
Кран гаражный гидравлический в общем виде имеет следующие конструктивные элементы:
- Стальная рама.
- Стрела, обладающая внушительным показателем вылета.
- Ходовые колеса.
- Гидропривод (гидроцилиндр, рукоять управления, аварийный клапан).
- Грузовая цепь с грузозахватным крюком.
Продуманная структура крана обеспечивает ему хорошую защиту от угловых нагрузок. Поэтому вероятность того, что эта грузоподъемная машина опрокинется, равна нулю.
Эксплуатация гидравлического привода позволяет без труда перемещать груз в вертикальной плоскости с точностью до миллиметра. Это крайне важная особенность, особенно когда речь заходит о монтаже высокоточных габаритных деталей различных механизмов и агрегатов.
Технология сборки крана своими руками
При наличии определенных навыков собрать механизм собственноручно не составит труда
Для этого важно составить предварительный чертеж конструкции, грамотно выбрать материалы и четко следовать инструкции сборки
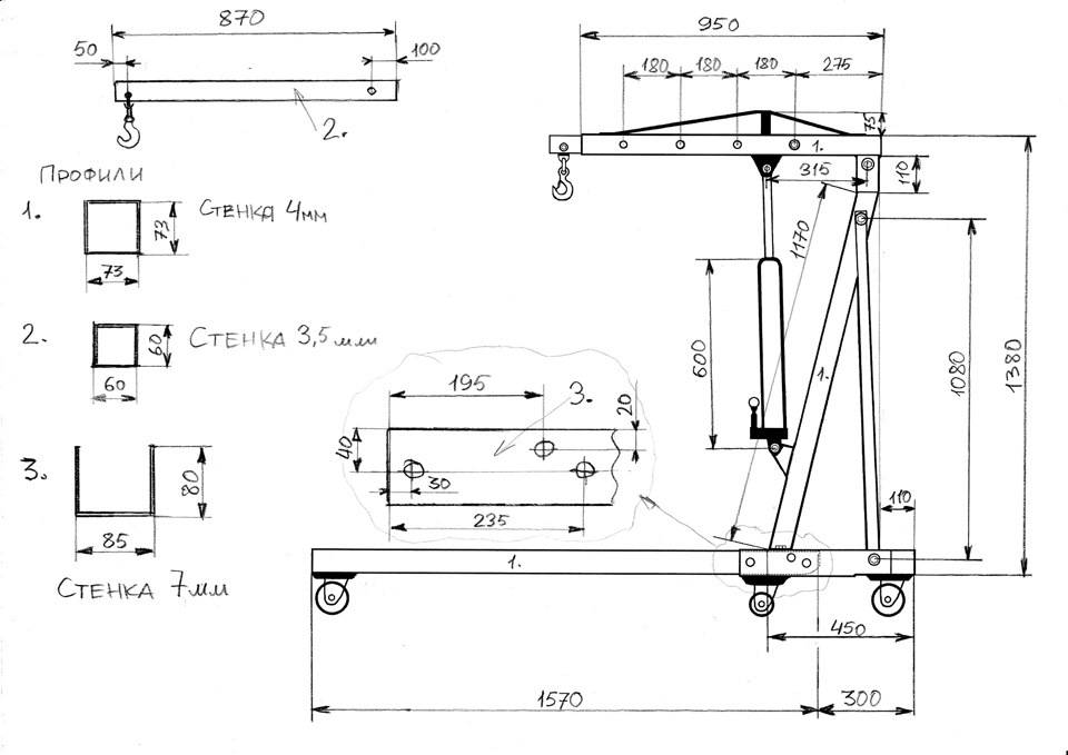
Схемы и чертежи
Ниже представлены примерные чертежи гидравлического крана. Точные расчеты требуется производить самостоятельно, исходя из параметров конкретного гаража.

Выбор материала
Для самостоятельного построения гаражного подъемника рекомендуется сначала закупить весь требующийся материал:
- 3 стальных уголка с параметрами 7.5х7.5х0.8 сантиметров.
- «Червячный» редуктор, минимальная грузоподъемность которого начинается от 300 килограмм, а придаточный показатель – 60 килограмм.
- Крепкая стальная плита толщиной в один сантиметр. При наличии старого станка по металлу можно ее взять из него, посторонней помощи для этого не понадобится.
- Около 10 подходящих болтов.
- 2 плотных металлических цепи с диаметром от двух до трех сантиметров. Кран предназначается для работы с очень тяжелыми материалами – следует внимательно следить за качеством металла.
- Крюк.
- Стальной трос диаметром 5 миллиметров.
- 2 шпонки с разными параметрами в форме звездочки.

Пошаговая инструкция построения
Процесс сборки и установки самодельного гаражного крана не выглядит сложным:
- стальные уголки требуется установить на параллельных стенах;
- на них закрепить стальную плиту с помощью болтов «М8»;
- на плите зафиксировать «червячный» редуктор;
- установить шпонку большего размера на приводном вале;
- на заранее обозначенном месте просверлить дырку, провести в нее цепь и сомкнуть ее в кольцо;
- зафиксировать шпонку меньшего размера на выходном вале редуктора;
- просверлить в плите еще 2 отверстия;
- продеть через отверстия вторую цепь, где один конец окажется на маленькой шпонке, а на втором установлен крюк.
Самостоятельная установка крана имеет ряд важных преимуществ. Например, стоимость самодельного механизма почти в два раза ниже покупного.
Выбираем среди предлагаемого ассортимента
Если говорить о распространенном подъемном оборудовании среди автомобилистов, то это – механический домкрат, который популярен на протяжении долгого периода времени. Этот складной гаражный кран идет в комплекте с практически всеми отечественными автомобилями.
Итак:
Говоря в целом о таком домкрате, хочется отметить, что это плечо подхвата, которое крепится тщательным образом на винте, кроме того, он имеет и специальный паз под выемки, которые расположены на днище автомобиля, а значит, проблем с установкой быть не должно.
Вертикально-винтовой домкрат
- В том случае, если вы решили воспользоваться вертикально – винтовыми домкратами, то можно смело заявить, что они являются надежными, кроме того, они удобны в применении, такие домкраты отличаются высокой прочностью, незначительной стоимостью и хорошей высотой подъема. Гаражный складной кран не так и сложно сделать своими руками.
- Но это не значит, что горизонтально – ромбовидный домкрат не пользуется популярностью, чтобы поднять и опустить автомобиль с таким домкратом, необходимо осуществлять вращение винта, который установлен параллельно основанию.
Горизонтально-ромбовый домкрат
- Если вас интересует ромбовидный домкрат, обладающий электрическим приводом, то знайте, что такая конструкция является наиболее удачной для дорожного автомобильного набора. Конструкция отличается жесткостью, незначительной массой, а также простой эксплуатацией, так что всегда можно воспользоваться именно таким домкратом.
- Рычажно-винтовой домкрат также популярен, в основном такие модели можно встретить в комплекте европейских и отечественных автомобилей, они надежны и практичны, но если не позаботиться о наличии ровной площадки, то может произойти опрокидывание автомобиля. Данная модель отличается надежностью и долговечностью. Она прослужит не менее 10-ти лет.
Рычажно-винтовой домкрат
Также есть еще и реечные домкраты, они не менее популярны, есть и ручные лебедки, которые также можно приобрести без проблем. Такие устройства принято считать лучшими, когда нужно поднять автомобиль, но также их часто используют и для груза на строительной площадке. Они отличаются не только высотой подъема, но также и простой конструкцией, но вот есть и недостатки, например, большой вес, габариты.
Применение реечного домкрата
Технология изготовления и материалы
Для изготовления вентиля используются разные материалы:
- Латунь. Изделие из латуни отличается небольшими габаритами, малым весом, коррозионной стойкостью и большой продолжительностью срока службы. Его можно монтировать в систему как холодного, так и горячего водоснабжения из стальных и пластиковых труб. К недостатком можно отнести высокую стоимость таких изделий.
- Чугун. Вентили из чугуна имеют довольно большую массу, но надёжные, способные выдержать повышенный уровень давления, устойчивые к разному роду деформациям. Имеют невысокую цену, поэтому часто применяются для сооружения системы водоснабжения в частных и многоквартирных домах, дачных построек и гаражей.
- Сталь. У стальных изделий вместо ручки на корпусе установлено колесо, проворачивая которое можно отрегулировать уровень давления или прекратить напор движущейся среды. Они легче чугунных, имеют простую конструкцию, ремонтнопригодные, могут использоваться в системах отопления с более высокой рабочей температурой и давлением, а также в сетях где существует опасность возникновения гидроударов.
Основные разновидности оборудования
Среднестатистический гараж имеет урезанную квадратуру и нуждается в тщательном подборе оборудования. Перед обустройством рекомендуется тщательно изучить необходимость отдельных механизмов, их разновидности, плюсы и минусы. Гидравлический кран определяется по двум критериям.
По виду приводов
Выделяются также два подвида гидравлического привода:
- автоматизированная конструкция с гидроцилиндрами;
- комбинированная, с гидроцилиндрами и лебедками ручного управления.
Существенный недостаток первого – масляные цилиндры. Они нуждаются в частой регулярной замене, поэтому такая конструкция считается крайне невыгодной для постоянного пользования. Комбинированная система прослужит дольше. Однако часть работы с лебедками придется взять на себя механику.

По конструкции опоры
Гидравлические краны подразделяются на передвижные и стационарные, могут быть складными и сборными литыми (гусь). Для обычных гаражей рациональнее подобрать передвижную конструкцию со складными деталями.
Гидравлические краны: особенности и преимущества
Важно отметить, что такие приспособления используются для выполнения различных работ, их принято использовать в гаражах, на стройке, поэтому сегодня они востребованы и популярны. Гаражный кран складной гидравлический. Гаражный кран складной гидравлический
Гаражный кран складной гидравлический
- Они просты в эксплуатации, кроме того, не будут требовать особых знаний, именно такое приспособление сможет поднять тот или иной узел автомобиля без проблем, даже если речь идет о грузовом автомобиле.
- Есть несколько видов таких приспособлений, например: складные, стационарные устройства, причем каждый из этих вариантов сегодня популярен и востребован, и предназначен для выполнения различных видов работ.
- Если говорить о стационарном гидравлическом кране, то он имеет серьезное отличие, сравнивая со всеми остальными вариантами, его принято крепить к полу гаража, он также отличается и поворотной стрелой, которая имеется в наличии.
- Это кран действительно является удобным, особенно, когда необходимо снять крупный узел автомобиля, и т.д. Теперь вы должны понимать, чем необходимо воспользоваться, когда нужно снять, например, коробку передач.
Привод гидравлического крана
Хочется отметить, что такие приспособления бывают двух видов: это гидравлика, а также гидравлика, оснащенная специальным механическим приводом, если выбор пал на второй вариант, то нужно знать, что его принято считать более удобным. Говоря о конструкции гидравлического привода крана, знайте, что она является схожей с гидравлическим домкратом.
Если выбор пал на складной гидравлический кран, знайте, что он отличается удобством и доступностью, а значит, этот вариант является действительно одним из наилучших, он компактный, мобильный, а самое главное, грузоподъемный, что немаловажно
Как правильно выбрать домкрат
Итак:
Так что, если внимательно изучить все критерии выбора, то можно без проблем выбрать качественный, надежный и безопасный домкрат. Гаражные краны довольно разные и различна специфика их применения. Инструкция поможет вам сделать правильный выбор.
Какими характеристиками должен обладать гаражный подъемник
Так как устройство будет использоваться в довольно стесненных условиях стандартного гаража, к нему выдвигаются определенные требования. Во-первых, оно не должно быть слишком большим — такой автомобильный подъемник, несмотря на высокую мощность, занимает много места, что очень нежелательно на такой небольшой площади. Во-вторых, рекомендуется отдавать предпочтение механизмам с небольшим вертикальным ходом, иначе вы рискуете упереться им в потолок.
Второе требование — грузоподъемность. Ее рассчитывают, отталкиваясь от видов работ, для которых разрабатывается автоподъемник. От предназначения зависят и габариты механизма. Если для обычной замены колеса подойдет и обычный домкрат, то для более масштабных работ понадобится автомобильный подъемник с платформой, хотя для таких ответственных действий рекомендуется прибегать к помощи профессиональной техники.
Виды кранов для гаража – особенности конструкции

Гидравлические краны могут быть складными и сборными не складными, есть в продаже конструкции кранов, которые можно передвигать и стационарные варианты подъемников.
Для небольшого гаража лучше выбирать передвижную конструкцию с возможностью перемещения. Такой гаражный кран оснащен низкими опорными стойками на колесах, поэтому его легко разместить под автомобилем для подъема кузова.
Стационарный гаражный кран оснащен стрелой с поворотной механикой, такая конструкция подходит для больших ангаров с надежным монолитным фундаментом и высоким потолком.
Если сравнивать передвижные и стационарные конструкции кранов, то стационарные имеют большую грузоподъемность за счет монолитного основания, придающего жесткость всей конструкции.
Высота подъема груза для стандартного оборудования – до 2. 5 метра от уровня пола.
Установка грузоподъемного механизма
Главным элементом крана является подъемный механизм, который может быть ручным или автоматическим. Тефлер состоит из троса и лебедки, устанавливаемой сбоку стойки. Трос движется благодаря вращению роликов. Дополнительной фиксации элементов не требуется, достаточно закрепить подъемник на стойке.
Самостоятельно изготовленный кран можно оснастить подъемным оборудованием, которое применяется в лифтах. Подобные механизмы отличаются высокой надежностью и способностью выдерживать массивные предметы.
Чтобы упростить выполнение ремонтных работ, допускается подключить к грузоподъемному элементу электрический привод. Для автоматизации конструкции подойдет двигатель мощностью 300-500 Вт. Электропривод монтируется к основанию кран-балки.
Укомплектованная электрическим приводом конструкция находит широкое применение при масштабном ремонте гаража и разборе автомобиля на запчасти, когда требуется выполнить комплекс работ. По принципу действия ручной и автоматизированный краны не имеют существенных отличий.
Опытные автовладельцы говорят, что кран-балка в гараже нужен редко, но если уж потребовался, то заменить его нечем. Он используется для снятия и установки двигателя, реже – для перемещения других грузов. Покупные механизмы стоят дорого и занимают много места, поэтому оптимальный выход для частного мастера – кран балка своими руками из подручных материалов.
Для того чтобы сделать гаражный подъёмник своими руками, вам потребуется:
- Для стоек – труба сечением 100х100, длиной 2350 мм – 2 шт.
- Для поперечной штанги – круглая труба диаметром 100 мм и длиной 4150 мм.
- Для опор – труба круглая диаметром 110 мм и длиной 600 мм – 2 шт.
- Для оснований и диагональный опор – уголок 100х100 мм.
- Болты М 16 для крепления опор к штангам.
- Колёса (например, от складской тележки) – 4 шт.
- Ручная лебёдка грузоподъемностью до 1 т.
- Трос и ролики (например, от привода дверей лифта).
Кран-балка необходим для перемещения различных грузов
Устройство кран-балки
Механизм представляет собой П-образную конструкцию (мост) с подъемным механизмом. В крупных автомастерских обе части могут быть подвижными. Мост движется по рельсам, подъёмник – по пролётной балке. В гаражах для экономии места рельсы не прокладывают, а мост оснащают колёсами.
Устройство кран-балки состоит из опор, пролетной балки и подъемного механизма. Опоры свариваются из металлических труб и швеллера. В качестве грузоподъемного механизма используется ручная или, реже, электрическая лебедка.
Краны-балки относятся к типу «управляемая с пола» в отличие от тех, которыми манипулируют из кабины. Для облегчения труда механика гаражный кран может быть оборудован электрической лебёдкой
. Это увеличит расходы на изготовление и обслуживание, но при необходимости часто демонтировать двигатели и другие тяжёлые агрегаты, окупит себя. В сельской местности, где есть перебои с электричеством, недостаточная мощность или перепады напряжения, стоит отдать предпочтение ручной лебёдке. Особенно если речь идёт о личном гараже, а не частной мастерской.
Выше мы рассмотрели, из чего состоит кран-балка: опоры, пролётная балка и подъёмник. Изготовление проходит в несколько этапов:
- Сварить вертикальные опоры в виде перевёрнутой буквы Т с двумя диагональными опорами.
- Приварить пролётную трубу, чтобы получилась П-образная конструкция.
- Установить колёса.
- Приварить к одной из боковых опор лебёдку.
- Установить подъёмный механизм: зафиксировать ролики, протянуть трос и подвесить крюк.
Готовые чертежи можно найти в сети, но проще сделать самому, подогнав изделие под размеры гаража.
Важно Технические характеристики автомобильной крановой установки КС-3574 на базе Урал-5557
Чертеж крана
Если этот вид подъемника по каким-то причинам не подходит, можно изготовить гаражный кран гусь своими руками – это займёт даже меньше времени. Кран-гусь имеет Г-образную форму, где вертикальная стойка оснащена домкратом, а не лебёдкой. Его подкатывают под автомобиль спереди и поднимают двигатель, качая гидравлический домкрат. Стрела двигается вверх и поднимает груз.
Ещё одно интересное решение, которое поможет сэкономить место – подвесной кран-балка. В отличие от опорной конструкции, описанной выше, пролётная балка крепится к потолку посредством рельсы (двутавровой балки). Этот вариант требует достаточной высоты потолка и прочности постройки.
Все устройства должны быть испытаны с грузом, вес которого на 20 % превышает максимальную планируемую нагрузку.
Как пользоваться
Телескопическая стрела механизма может быть установлена в нескольких положениях. Гусь маневренный, им может управлять 1 человек. Оборудование поднимает достаточно тяжелые грузы за счет установленного домкрата, никаких дополнительных аксессуаров и устройств для перемещения тяжестей не нужно.

Уважаемые посетители сайта «Лабуда блог
» из представленного материала вы узнаете, как самостоятельно собрать гаражный гидравлический кран гусь, рассмотрим чертежи, пошаговые фото сборки, а так же видео испытания самодельного крана для демонтажа двигателя.
Каждый автомобилист за свою практику эксплуатирования автомобиля наверняка сталкивался с поломками двигателя, а не редко и с его заменой или капитальным ремонтом, но чтоб извлечь ДВС с посадочного места потребуется надежная лебедка или кран. Покупка специального оборудования обойдется как минимум 10 К, а устанавливать лебедку на потолок гаража не у всех есть такая возможность, потому как гаражные перекрытия довольно слабые.
Сделать кран типа «гусь» с системой гидравлического поднятия стрелы вполне можно и самостоятельно, для чего понадобится 7 метров профиля 80х80 мм и 3 мм толщина стенки. Пара труб 89 по 700 мм и 76-900 мм. Домкрат пятитонник 5т, пластины толщиной 8 мм 4 шт. Автор в данном случае купил только колеса 2 шт обычных, 2 шт поворотных, 1 м шпильки М-14 В ходе испытаний самодельный кран спокойно поднимает 250-300 кг, так же перевозились бетонные бордюры общим весом 500 кг, все отлично.
Устройство и принцип действия
самодельного гидравлического крана «Гусь» по сути довольно простое, да и само название говорит само за себя) Состоит из опоры (разборная) с колесиками для передвижению по гаражу и подкату под автомобиль, вертикальной стойки с домкратом и непосредственно самой выдвижной стрелы с цепью и крюком.
Высота подъема короткой стрелы в нижней точке 90 см в верхней точке. Длинная стрела, низ 80 см, а в верхней 1800 мм и с выкрученным штоком домкрата низ 1400 мм и верх 2250 мм.
И так, давайте рассмотрим, что конкретно понадобится для сборки гаражного крана?
Материалы
- проф труба 80х80 длинной 7 м
- труба 89 мм по 700 мм 2 шт
- труба 76 длинна 900 мм
- колеса 6 шт, 2 поворотные, 2 обычных и 2 с тормозом
- металлические пластины 8 мм 4 шт
- домкрат 5 т
- цепь и крюк, шпилька М-14 длинна 1000 мм
Инструменты
- сварочный инвертор
- УШМ (болгарка)
- дрель
- набор гаечных ключей
Пошаговая инструкция по сборке гидравлического крана гусь своими руками.


Для начала следует ознакомиться с чертежами и схемами, а потом переходим к сборке.








Сначала изготавливается стыковая часть часть опоры, она же будет разборной.



Приваривается вертикальная стойка с распоркой в нижней опорной плоскости.

Установка и крепление домкрата.





Стрела на полный вылет.

Эксперимент в гараже, подъем скутера)

Вес мопеда 120 кг

Вот такой кран вполне можно сделать своими руками с минимальными затратами. Просто, бюджетно и компактно, потому как кран разборный.

Спасибо за внимание!
Для ремонтных работ по двигателю авто, понадобилось подъёмное приспособление, умелец из Новосибирска решил сделать самодельный подъемный кран своими руками.
На фото показана конструкция самоделки.

Основание сварено из швеллера 60 мм и квадратной трубы 50 мм, дополнительно использованы обрезки для усиления конструкции.
Швеллер сварен под углом, на который отклоняется назад вертикальная колонна.

Стойка вертикаль и стрела из квадратной трубы 50 мм.

Ноги и вылет стрелы сделаны из 40 мм квадратной трубы.Насверлил отверстий под вертикальную стойку, ноги, и стрелы на вылет. Доварил ухо под домкрат и прикинул как встанет домкрат на огрызок какой-то металло-конструкции. На стреле 30мм уголок усиление.


Плечо – 1/5, примерно 110 см стрелы и 22 см упора от оси вертикальной стойки.

На фото подъем 130 см до 210 см. Стрелу можно двигать в плюс в зависимости от грузоподъемности. Так же можно на домкрате из штока выкрутить винт. Домкрат рассчитан на 3000 кг, поэтому вес на стреле максимум 600 кг (плечо 3000/5).

При испытаниях начало гнуть вертикальную консоль (между нижними швеллерами и упором нижним домкрата). Мотор + коробка, 250-260 кг. Пришлось усилить, наварить на 50 трубу нарезанные пластины 5 мм.



Самодельный подъёмный кран простой в использовании, 25 мин и мотор уже стоит на подушках в машине.

sam-stroitel.com
Инструкция по сборке и чертежи
Конструкция получила название «гусь» из-за своей Г-образной формы. Механизм отличается удобством в работе, ведь благодаря ему можно подвести стрелу к моторному отсеку. Это снижает затраты труда на обвязку мотора, из-за чего срок выполнения ремонтных работ сокращается.

Конструкция «гуся» простая. Механизм состоит из разборный опоры, оборудованной колесиками. С их помощью его легко передвигать с места на место, подкатывать под автомобиль.
Устройство для гаража имеет вертикальную стойку, на ней устанавливают домкрат. «Гусь» имеет выдвижную стрелу, которая оборудована цепью с крюком. При активации домкрата стрела идет вверх, поднимая груз.
Гидравлический кран чаще всего используют для подъема двигателя. Устройство можно изготовить по готовым чертежам, но чаще всего используется созданная от руки схема крана, своими руками ее начертят даже новички.

Сначала изготавливают разборную часть поры, она является стыковой. После этого приваривают вертикальную стойку. В нижней части обязательно устанавливают распорку. После этого переходят к установке домкрата, он должен быть надежно закреплен. Стрелу делают на полный вылет, она нужна для снятия двигателя. Все части конструкции сваривают. В результате получается надежное, но маневренное устройство.
Для этого подвешивают груз, который должен быть на 20% тяжелее того, который нужно поднимать. Если механизм выдерживает нагрузку, его можно использовать в работе. Кран-гусь разборный, поэтому он не займет много места в гараже.
Причины протечек и способы их устранения
Основные причины возникновения протечек могут быть следующие:
- изношенная прокладка. Если при закрытом вентиле вода сочится из крана, то требуется заменить прокладку. Её изготавливают из микропористой резины, которая является надёжным и износостойким материалом, стойким к деформациям и коррозии. Применение прокладки в качестве уплотнителя обеспечивает высокую степень герметичности и простоту техобслуживания вентиля. На сокращения срока её службы может повлиять нарушение целостности кромки седла под клапаном вентиля. Соприкасаясь с деформированной кромкой прокладка быстрее выходит из строя и плохо держит воду. Чтобы её заменить вначале перекрывают подачу воды на стояке, затем разбирают устройство и меняют прокладку на новое изделие;
- неисправность сальника или износ его набивки. О том, что сальник пришёл в негодность или пересохла его набивка можно судить по течи воды по стенкам штока в тот момент, когда вентиль находится в открытом положении. Способ устранения течи в этом случае зависит от конструктивных особенностей головки вентиля. Когда головка имеет сальниковую втулку, то зачастую достаточно её просто затянуть поплотнее. Если втулка затянута до предела, в течь воды не прекращается, то необходима замена набивки. Работу по замене сальниковой набивке проводят при закрытом вентиле следующим образом:
- отворачивают и снимают втулку сальника;
- извлекают старые слои набивки с помощью шила или узкой отвёртки;
- укладывают новый наполнитель, уплотняя каждый слой жгута отвёрткой;
- устанавливают на место втулку, закручивая её не менее чем на 2 — 3 витка резьбы.
Для ремонта вентиля, у которого в конструкцию головки входит накидная гайка, втулку сальника снимать не обязательно. Достаточно немного ослабить на штоке крепление накидной гайки, и намотать поверх втулки сальника распушенный жгут уплотнителя. Затем гайку следует вернуть в исходное положение.
Из каких материалов изготавливают
Материалы для изготовления шаровых конструкций множество:
- Углеродистая сталь. Чаще всего применяют сталь 20 и 09Г2С (эту сталь можно использовать при температурах до -60°С). Стальные изделия недороги, прочны, долговечны, но подвержены коррозии – для защиты их покрывают хромом или никелем.
- Нержавеющая сталь, чаще всего марки 12Х18Н10Т. Изделия из нержавейки можно использовать в системах с агрессивными средами, при низких температурах, они прочны и долговечны, но довольно дороги.
- Латунь – сплав меди с цинком. Латунь прочна и пластична, не ржавеет, долговечна, но теряет прочность уже при 200°С. Но в жилых домах таких температур не бывает, и в настоящий момент это самый популярный материал для кранов небольших диаметров в жилье.
- Бронза – сплав меди с оловом (разновидности бронзы – сплавы с алюминием, кремнием, бериллием, свинцом). Качество изделий аналогично латунным, цена выше. Встречаются не очень часто.
- Титан. Легкие, прочные, дорогие, в быту не применяются.
- Пластик. Применяют для пластиковых трубопроводов, выполняют из того же материала (бывают из непластифицированного ПВХ, полиэтиленовые, полипропиленовые). Такие краны обладают достаточной прочностью, не склонны к коррозии, химически инертны. Менее надежны, чем металлические изделия. В быту их применяют на системах водоснабжения и отопления, но не на входе в квартиру или дом.
- Керамика. Новый прочный долговечный материал. Долговечны, не подвержены коррозии, химически инертны. Довольно дороги и, несмотря на прочность и износостойкость, хрупки, боятся ударов и падений.
- Чугун. Архаизм. Встречаются в некоторых старых водопроводных системах (не в быту).
- Силумин. Сплав алюминия с кремнием. Практически можно считать, что арматура из силумина – подделка. Долго не стоят, трескаются, срезается резьба, начинают течь в самый неподходящий момент. В общем – перевод денег.





































